☆敷地面積48坪、建物53坪の3階建戸建て住宅☆
那覇の中心部!ゆとりある生活空間で優雅な暮らしを!
民泊、旅館業取得可能エリアです!
売買一戸建て那覇市泊3丁目
価格 1億4,800万円
物件情報
| 価格 | 1億4,800万円 | 階数 | 3階建て |
|---|---|---|---|
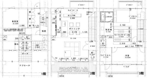
| 間取り | - | ||
| 建物面積 | 173.04m² / 52.34坪 | 土地面積 | 159.23m² / 48.17坪 |
| 私道負担 | 無し | 築年月 | 2015年09月(築10年) |
| 駐車場 | 2台 | 地目 | 宅地 |
| 引き渡し | 相談 | 接道方向 / 道路幅員 | - |
| 土地権利 | 所有 | 都市計画 | 市街化区域 |
| 用途地域 | 商業 | 建物構造 | RC(鉄筋コンクリート造) |
| 取引態様 | 仲介 | 所在地 | 那覇市泊3丁目 地図 |
| 建ぺい率 / 容積率 | 80% / 400% | 交通 | 【バス停】泊高橋: 徒歩約5分 |
| 価格備考 | - | ||
| 更新日 | 2026/04/27 | 公開期限 | 2026/05/10 |
この物件の設備・条件
| キッチン | 給湯 、 システムキッチン 、 アイランド型キッチン |
|---|---|
| バス・トイレ | バス/トイレ別 、 浴槽 、 シャンプードレッサー 、 独立洗面所 、 トイレ2ヶ所 |
| 室内設備 | 室内洗濯機置き場 |
| 建物設備 | 上水道 、 下水道 |
| 設備備考 | ◎トイレ3ヶ所◎リビングに開放的な書斎◎1階部分事務所利用可能◎アイランドキッチン+背面には引き戸付きの目隠しスペース |
物件備考
| 備考 | ※前面道路から2m泊地区地区計画にて建物構造物を建築する事は出来ません。詳しくは那覇市が出している、泊地区地区計画にてご確認下さい。 ※固定資産税:172,000円/年 ■現況: 所有者居住中 |
|---|
【掲載物件について】
・「うちなーらいふ」は、より正確な情報の提供を心がけておりますが、物件情報に誤りがある場合は、ご連絡をお願い致します。
・ご報告いただいた内容につきましては、掲載提供元である不動産会社に直接送信させていただきます。情報が不足している場合や、事実確認ができない場合などは対応できない場合がございます。
・本フォームは物件情報の誤りに関する報告専用です。賃貸・売買に関するお問い合わせには対応しておりませんので、あらかじめご了承ください。
こちらをクリックして物件の間違いを報告する。






















