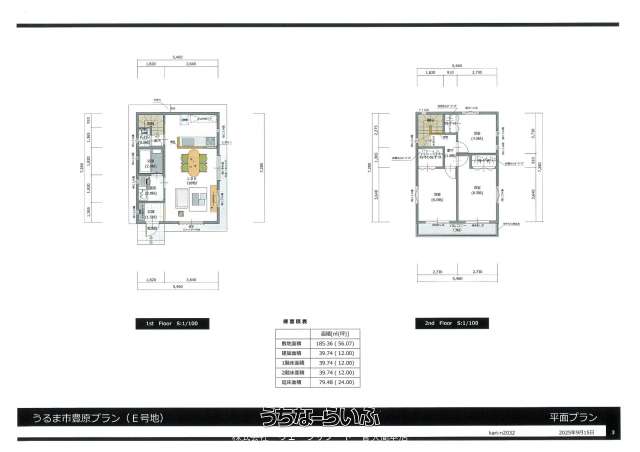
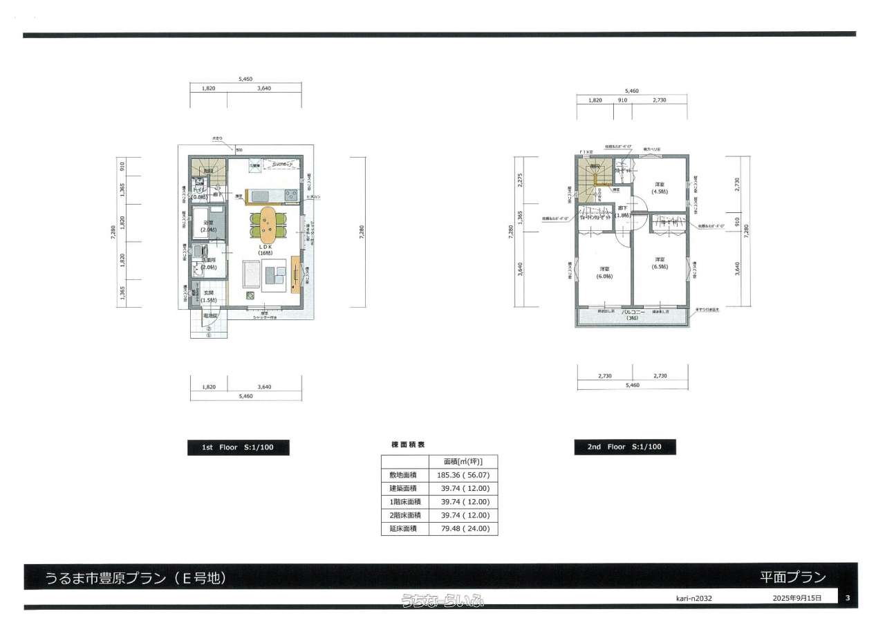
【E号地】うるま市豊原① 高江洲小・中近く🏫ABLOやドン・キホーテも車で3,4分ほど🚗買い物に便利な立地です。 参考プラン有ります☆彡 木造2階建て 3LDK(24坪)本体価格1930万円(外構工事別途)注文住宅に関してもご相談ください!
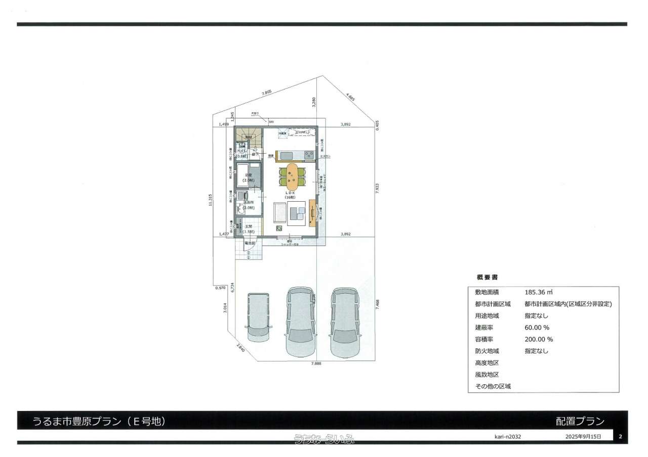
売買土地うるま市豊原 185.36㎡
価格 1,890万円
パノラマ画像
物件情報
| 価格 | 1,890万円 | 坪単価 | - |
|---|---|---|---|
| 土地面積 | 185.36m² / 56.07坪 | 地目 | 雑種地 |
| 用途地域 | 未指定 | 接道方向 / 道路幅員 | 南5m |
| 建ぺい率 / 容積率 | 60% / 200% | 取引態様 | 専任媒介 |
| 都市計画 | 非線引 | 土地権利 | 所有 |
| 私道負担 | - | 引き渡し | 相談 |
| 交通 | 【バス停】高江洲中学校前: 徒歩約3分 | 所在地 | うるま市豊原 地図 |
| 価格備考 | - | ||
| 更新日 | 2026/01/31 | 公開期限 | 2026/02/13 |
この物件の設備・条件
| 立地 | 高台 、 更地 |
|---|---|
| 設備備考 | ※水道本管整備 |
物件備考
| 備考 | ※売買対象面積61.03坪(201.78㎡) |
|---|
【うちなーらいふ】は、より正確な情報の提供を心がけておりますが、物件情報に誤りがある場合は、ご連絡をお願い致します。
ご報告いただいた内容につきましては、掲載提供元である不動産会社に直接送信させていただきます。情報が不足している場合や、事実確認ができない場合などは対応できない場合がございます。
間違いを報告する




































