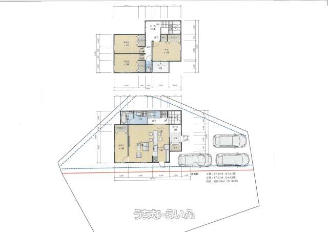
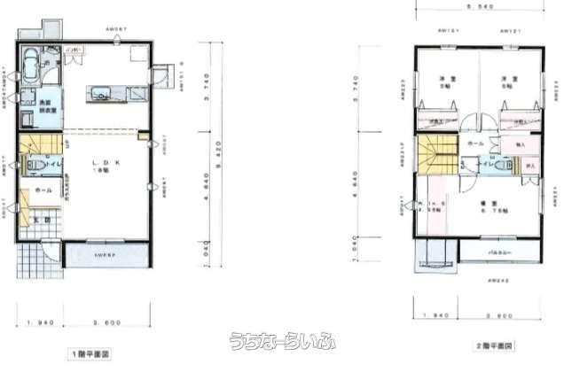
間口4.9mの東側道路♪駐車場並列2台!縦列4台可能♪北西2方向に対して高台になっていますので日当りと風通しが良いです♪お子様からシニアまで過ごしやすい環境です♪建築参考プランご確認下さい!土地造成工事を行った強固な地盤です!マイホーム建築に丁度良い土地です♪
物件情報
| 価格 | 1,700万円 | 坪単価 | 28.8万円 |
|---|---|---|---|
| 土地面積 | 195.11m² / 59.02坪 | 地目 | 宅地 |
| 用途地域 | 無指定 | 接道方向 / 道路幅員 | 東5m |
| 建ぺい率 / 容積率 | 60% / 200% | 取引態様 | 専任媒介 |
| 都市計画 | 市街化調整区域 | 土地権利 | 所有 |
| 私道負担 | - | 引き渡し | 即日 |
| 交通 | - | 所在地 | 八重瀬町友寄 地図 |
| 価格備考 | - | ||
| 更新日 | 2026/05/18 | 公開期限 | 2026/05/31 |
この物件の設備・条件
| 立地 | 更地 |
|---|---|
| その他 | 上水道 |
物件備考
| 備考 | - |
|---|
【掲載物件について】
・「うちなーらいふ」は、より正確な情報の提供を心がけておりますが、物件情報に誤りがある場合は、ご連絡をお願い致します。
・ご報告いただいた内容につきましては、掲載提供元である不動産会社に直接送信させていただきます。情報が不足している場合や、事実確認ができない場合などは対応できない場合がございます。
・本フォームは物件情報の誤りに関する報告専用です。賃貸・売買に関するお問い合わせには対応しておりませんので、あらかじめご了承ください。
こちらをクリックして物件の間違いを報告する。












