オーシャンビュー奥武島を見下ろす絶景ポイント! 住宅用地や別荘用地に最適です!!徒歩圏内にお洒落なカフェやペンション多数!!観光客も多く訪れる好立地で綺麗な海を見渡しながらペンションや介護施設などにも適してます!
売買土地南城市玉城字玉城 158.67㎡
価格 1,056万円〜1,430万円
物件情報
| 価格 | 1,056万円〜1,430万円 | 坪単価 | 22万円 |
|---|---|---|---|
| 土地面積 | 158.67m² / 48坪 | 地目 | 原野 |
| 用途地域 | 無指定 | 接道方向 / 道路幅員 | 西5m |
| 建ぺい率 / 容積率 | 40% / 200% | 取引態様 | 売主 |
| 都市計画 | 都市計画区域外 | 土地権利 | 所有 |
| 私道負担 | 無し | 引き渡し | 相談 |
| 交通 | - | 所在地 | 南城市玉城字玉城 |
| 価格備考 | 建築条件付き22万円/坪 建築条件なし25万円/坪 4棟分の土地分譲として、①48坪②59坪③62坪④65坪があります。 例 ①48坪×22万円=1056万円(建築条件付き) ②48坪×25万円=1200万円(建築条件なし) | ||
| 更新日 | 2026/04/30 | 公開期限 | 2026/05/13 |
この物件の設備・条件
| 立地 | 高台 |
|---|---|
| 建築条件 | 建築条件あり 、 分筆可 |
| その他 | プロパンガス 、 上水道 |
物件備考
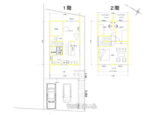
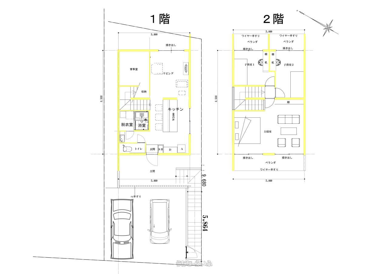
| 備考 | 4棟分譲予定。希望場所やまとめ買いもご相談ください。 写真は弊社で予定している建物のイメージです。建築内容はご相談ください。 |
|---|
【掲載物件について】
・「うちなーらいふ」は、より正確な情報の提供を心がけておりますが、物件情報に誤りがある場合は、ご連絡をお願い致します。
・ご報告いただいた内容につきましては、掲載提供元である不動産会社に直接送信させていただきます。情報が不足している場合や、事実確認ができない場合などは対応できない場合がございます。
・本フォームは物件情報の誤りに関する報告専用です。賃貸・売買に関するお問い合わせには対応しておりませんので、あらかじめご了承ください。
こちらをクリックして物件の間違いを報告する。









