お好きな間取りでプラン可!予算と希望に合わせた理想の家づくり✨安慶名の商業地域近くで老後も便利!平屋住宅や2階建てもできます。どんなことでもお問合せください✨建築条件付き土地🏠
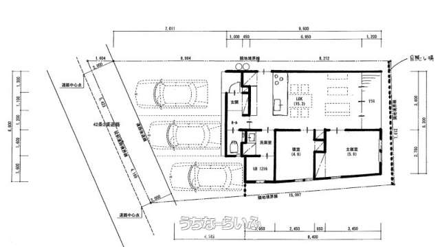
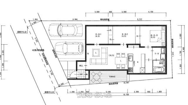
売買土地うるま市安慶名2丁目 125.72㎡
価格 1,180万円
物件情報
| 価格 | 1,180万円 | 坪単価 | - |
|---|---|---|---|
| 土地面積 | 125.72m² / 38.03坪 | 地目 | 宅地 |
| 用途地域 | 商業 | 接道方向 / 道路幅員 | 西 |
| 建ぺい率 / 容積率 | 80% / 400% | 取引態様 | 専任媒介 |
| 都市計画 | 市街化区域 | 土地権利 | 所有 |
| 私道負担 | 無し | 引き渡し | 相談 |
| 交通 | 【バス停】安慶名: 徒歩約3分 | 所在地 | うるま市安慶名2丁目 地図 |
| 価格備考 | - | ||
| 更新日 | 2026/05/01 | 公開期限 | 2026/05/14 |
物件備考
| 備考 | - |
|---|
【掲載物件について】
・「うちなーらいふ」は、より正確な情報の提供を心がけておりますが、物件情報に誤りがある場合は、ご連絡をお願い致します。
・ご報告いただいた内容につきましては、掲載提供元である不動産会社に直接送信させていただきます。情報が不足している場合や、事実確認ができない場合などは対応できない場合がございます。
・本フォームは物件情報の誤りに関する報告専用です。賃貸・売買に関するお問い合わせには対応しておりませんので、あらかじめご了承ください。
こちらをクリックして物件の間違いを報告する。(株)Makana House 本店
| 住所 | 沖縄県北谷町北谷 2-12-6 北谷ビル301 地図 |
|---|---|
| 営業時間 | 月-金 10:00〜18:00 土日祝も相談可能です!お電話ください |
| 定休日 | 土曜・日曜・祝祭日 |
| 免許 | 国土交通大臣免許番号(1)第10143号 |













