☆建築条件なし・美里高校隣です☆ 36.7坪【A号地:1,850万 】【B号地:1,890万】【一括販売可能です。ご相談ください。242.59㎡(73.4坪)】建築プランあります(建物1,740万円〜)✨※地積に変動の可能性があります。※解体後引渡し
パノラマ画像
物件情報
| 価格 | 1,850万円〜1,890万円 | 坪単価 | - |
|---|---|---|---|
| 土地面積 | 121.29m² / 36.69坪 | 地目 | 宅地 |
| 用途地域 | 第一種低層 | 接道方向 / 道路幅員 | 北6m |
| 建ぺい率 / 容積率 | 50% / 100% | 取引態様 | 仲介 |
| 都市計画 | 非線引 | 土地権利 | 所有 |
| 私道負担 | 無し | 引き渡し | 相談 (2026年1月頃) |
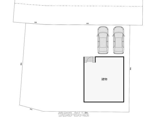
| 交通 | 【バス停】松本第二団地入口: 徒歩約2分 | 所在地 | 沖縄市松本2丁目 地図 |
| 価格備考 | 【A号地:1,850万】【B号地:1,890万】【一括販売可能です。242.59㎡(73.4坪)】※地積に変動の可能性があります。 | ||
| 更新日 | 2025/12/03 | 公開期限 | 2025/12/16 |
この物件の設備・条件
| 立地 | 平坦地 、 前道6m以上 、 低層住居専用地域 |
|---|---|
| 建築条件 | 分筆可 |
| その他 | 上水道 、 下水道 |
物件備考
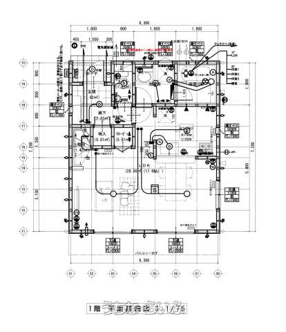
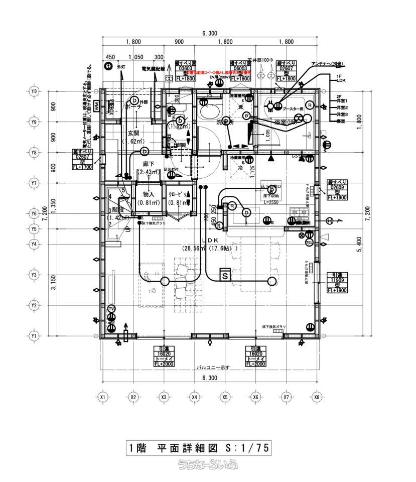
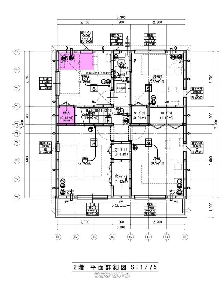
| 備考 | 建築業者のご紹介も可能です! 【 土地価格1,850万円~ + 1,740万円 ~ ※外構工事や水道引き込み料等別途 】 ・道路幅員6m |
|---|
【うちなーらいふ】は、より正確な情報の提供を心がけておりますが、物件情報に誤りがある場合は、ご連絡をお願い致します。
ご報告いただいた内容につきましては、掲載提供元である不動産会社に直接送信させていただきます。情報が不足している場合や、事実確認ができない場合などは対応できない場合がございます。
間違いを報告する株式会社 新和
| 住所 | 沖縄県沖縄市比屋根 7-21-14 アクアポイント2 301 地図 |
|---|---|
| 営業時間 | 平日 10:00〜17:00 ※営業時間外のご案内等相談可能でございます。営業時間内の前日15時までにご連絡ください。 |
| 定休日 | 土曜・日曜・祝日 |
| 免許 | 沖縄県知事免許(1)第5669号 |


































