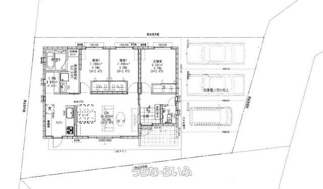
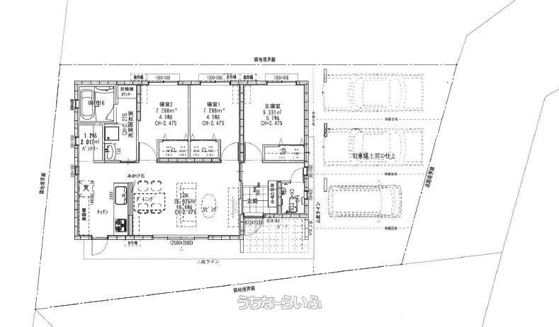
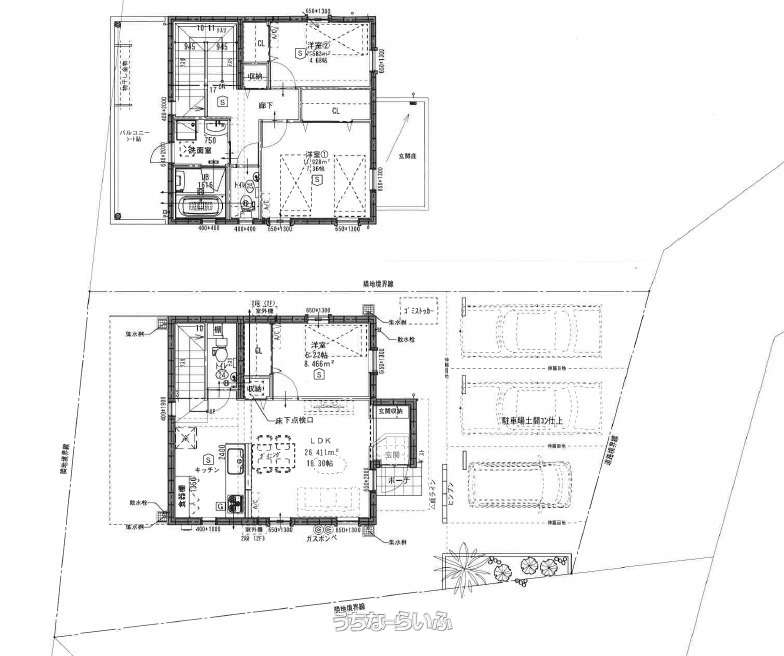
おきなわワールド玉泉洞近くの住宅地です!建築条件なし!建築参考プランあります!
売買土地八重瀬町長毛 177㎡
価格 1,070万円
物件情報
| 価格 | 1,070万円 | 坪単価 | 19.99万円 |
|---|---|---|---|
| 土地面積 | 177m² / 53.54坪 | 地目 | 雑種地 |
| 用途地域 | 無指定 | 接道方向 / 道路幅員 | 北東4.5m |
| 建ぺい率 / 容積率 | 70% / 400% | 取引態様 | 仲介 |
| 都市計画 | 都市計画区域外 | 土地権利 | 所有 |
| 私道負担 | 無し | 引き渡し | 相談 |
| 交通 | 【バス停】公民館前: 徒歩約3分 | 所在地 | 八重瀬町長毛 地図 |
| 価格備考 | - | ||
| 更新日 | 2026/01/20 | 公開期限 | 2026/02/02 |
物件備考
| 備考 | 進入道路(141㎡)持分1/4有り |
|---|
【うちなーらいふ】は、より正確な情報の提供を心がけておりますが、物件情報に誤りがある場合は、ご連絡をお願い致します。
ご報告いただいた内容につきましては、掲載提供元である不動産会社に直接送信させていただきます。情報が不足している場合や、事実確認ができない場合などは対応できない場合がございます。
間違いを報告する















