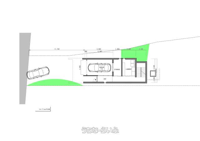
【全3区画中 残1区画!】読谷村長浜のオーシャンフロント 建築条件付土地!※画像は、参考プランのパースになります。
売買土地読谷村長浜 313.48㎡
価格 9,480万円
物件情報
| 価格 | 9,480万円 | 坪単価 | - |
|---|---|---|---|
| 土地面積 | 313.48m² / 94.83坪 | 地目 | 宅地 |
| 用途地域 | 未指定 | 接道方向 / 道路幅員 | 北14m |
| 建ぺい率 / 容積率 | 60% / 200% | 取引態様 | 専任媒介 |
| 都市計画 | 非線引 | 土地権利 | 所有 |
| 私道負担 | 無し | 引き渡し | 相談 |
| 交通 | 【バス停】長浜: 徒歩約3分 | 所在地 | 読谷村長浜 地図 |
| 価格備考 | - | ||
| 更新日 | 2025/12/19 | 公開期限 | 2026/01/01 |
この物件の設備・条件
| 立地 | 更地 、 前道6m以上 、 前面棟無 、 地盤調査済 、 海沿い 、 海まで徒歩10分以内 |
|---|---|
| 建築条件 | 建築条件あり |
| その他 | プロパンガス 、 上水道 |
| 設備備考 | 浄化槽設置が必要 |
物件備考
| 備考 | 一部地目 原野及び畑あり※農地転用要 |
|---|
【うちなーらいふ】は、より正確な情報の提供を心がけておりますが、物件情報に誤りがある場合は、ご連絡をお願い致します。
ご報告いただいた内容につきましては、掲載提供元である不動産会社に直接送信させていただきます。情報が不足している場合や、事実確認ができない場合などは対応できない場合がございます。
間違いを報告する


























