※価格相応!
モノレール:美栄橋駅から徒歩1分の好立地!確定測量済み!
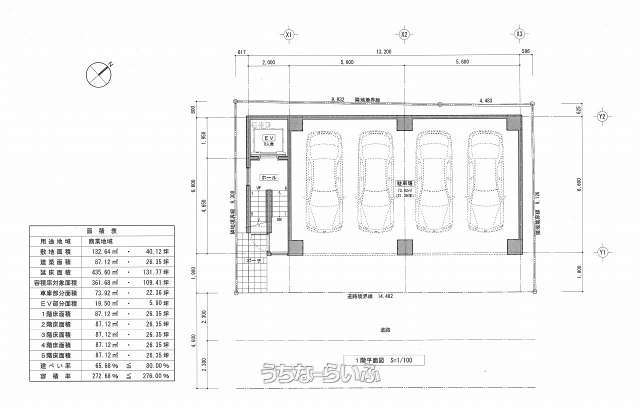
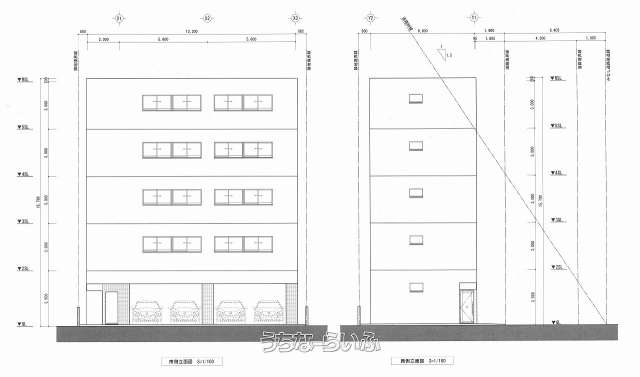
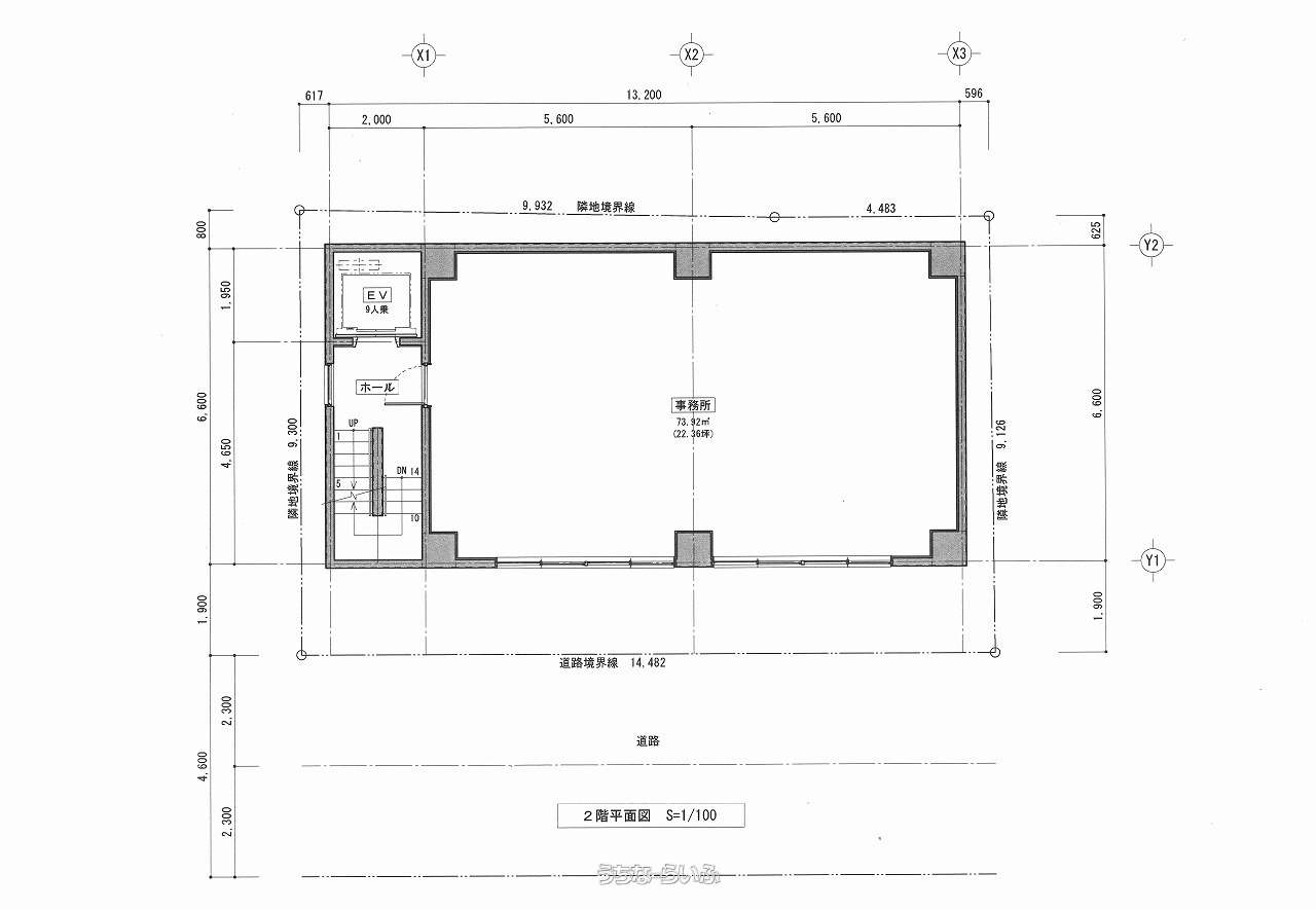
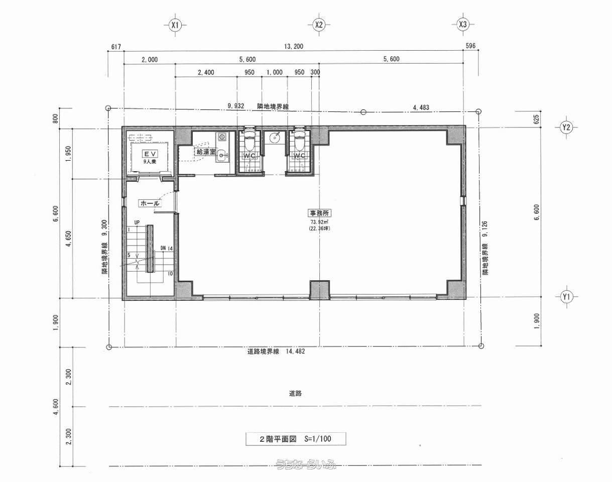
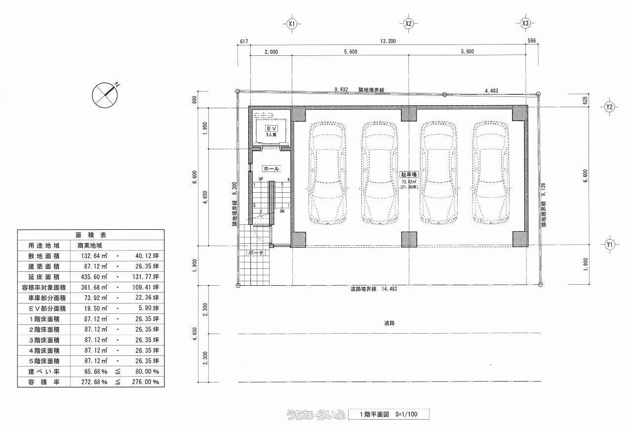
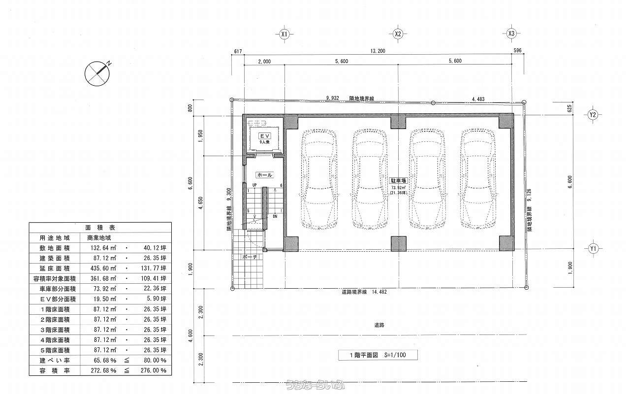
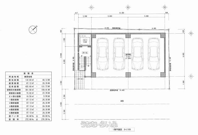
※建築参考プランあり
※詳細につきましてはお問い合わせください。
売買土地那覇市牧志1丁目 132.64㎡
価格 1億1,800万円
物件情報
| 価格 | 1億1,800万円 | 坪単価 | - |
|---|---|---|---|
| 土地面積 | 132.64m² / 40.12坪 | 地目 | 宅地 |
| 用途地域 | 商業 | 接道方向 / 道路幅員 | 南東4.6m |
| 建ぺい率 / 容積率 | 80% / 400% | 取引態様 | 売主 |
| 都市計画 | 市街化区域 | 土地権利 | 所有 |
| 私道負担 | - | 引き渡し | 相談 |
| 交通 | 【モノレール】美栄橋駅: 徒歩約1分 | 所在地 | 那覇市牧志1丁目 地図 |
| 価格備考 | - | ||
| 更新日 | 2025/12/15 | 公開期限 | 2025/12/28 |
この物件の設備・条件
| 立地 | 平坦地 |
|---|---|
| その他 | 都市ガス 、 上水道 、 下水道 |
物件備考
| 備考 | ※価格相応! モノレール:美栄橋駅から徒歩1分の好立地!確定測量済み! ※詳細につきましてはお問い合わせください。 ※容積率は道路幅員制限の為、276%になります。(前面道路・幅員4.6mの為) |
|---|
【うちなーらいふ】は、より正確な情報の提供を心がけておりますが、物件情報に誤りがある場合は、ご連絡をお願い致します。
ご報告いただいた内容につきましては、掲載提供元である不動産会社に直接送信させていただきます。情報が不足している場合や、事実確認ができない場合などは対応できない場合がございます。
間違いを報告する












