坂下通り沿い、眺望良好。海も見えます。住宅・店舗・事務所などお気軽にお問合せ下さい。
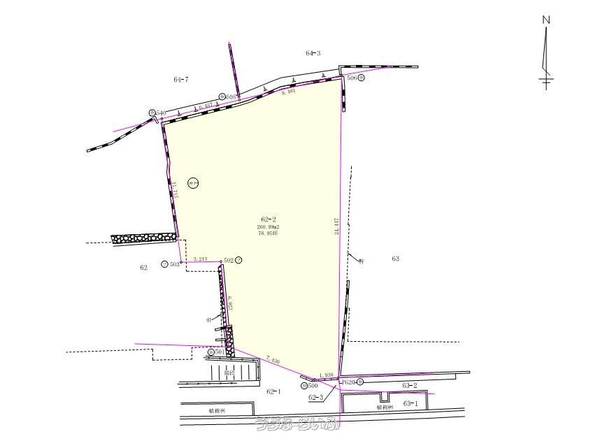
売買土地那覇市首里山川町3丁目 260㎡
価格 3,000万円
物件情報
| 価格 | 3,000万円 | 坪単価 | 38.15万円 |
|---|---|---|---|
| 土地面積 | 260m² / 78.64坪 | 地目 | 宅地 |
| 用途地域 | 第二種住居 | 接道方向 / 道路幅員 | 南西16.8m |
| 建ぺい率 / 容積率 | 60% / 200% | 取引態様 | 専任媒介 |
| 都市計画 | 市街化区域 | 土地権利 | 所有 |
| 私道負担 | 無し | 引き渡し | 相談 |
| 交通 | 【モノレール】儀保駅: 徒歩約15分 【バス停】山川: 徒歩約4分 | 所在地 | 那覇市首里山川町3丁目 地図 |
| 価格備考 | - | ||
| 更新日 | 2026/01/26 | 公開期限 | 2026/02/08 |
この物件の設備・条件
| 立地 | 高台 、 更地 、 前道6m以上 、 南道路 |
|---|
物件備考
| 備考 | - |
|---|
【うちなーらいふ】は、より正確な情報の提供を心がけておりますが、物件情報に誤りがある場合は、ご連絡をお願い致します。
ご報告いただいた内容につきましては、掲載提供元である不動産会社に直接送信させていただきます。情報が不足している場合や、事実確認ができない場合などは対応できない場合がございます。
間違いを報告する(有)ソリッドワークス
| 住所 | 沖縄県那覇市久米 1-1-6 久米向南ビル 地図 |
|---|---|
| 営業時間 | 平日 09:00〜18:00 土曜日 09:00〜13:00 |
| 定休日 | 日・祝祭日・年末年始・GW |
| 免許 | 沖縄県知事免許(6)第003378号 |



























