【2棟プランのうちA号地】首里平良町の県道沿いに物件出ました。【建築条件付き】なので、専門家と相談しながら家族の理想を形にできます。こだわりのプランで、夢のマイホームを実現しませんか。参考プランあり。城北小学校近く、ゆいレール儀保駅も徒歩圏内です。お気軽にお問い合わせください。
売買土地那覇市首里平良町1丁目 52.89㎡
価格 1,500万円
物件情報
| 価格 | 1,500万円 | 坪単価 | - |
|---|---|---|---|
| 土地面積 | 52.89m² / 15.99坪 | 地目 | 宅地 |
| 用途地域 | 第二種住居 | 接道方向 / 道路幅員 | 北2.2m、 南東15m |
| 建ぺい率 / 容積率 | 60% / 200% | 取引態様 | 仲介 |
| 都市計画 | 市街化区域 | 土地権利 | 所有 |
| 私道負担 | 有り 含む | 引き渡し | 相談 |
| 交通 | 【モノレール】儀保駅: 徒歩約10分 | 所在地 | 那覇市首里平良町1丁目 地図 |
| 価格備考 | - | ||
| 更新日 | 2026/04/01 | 公開期限 | 2026/04/14 |
この物件の設備・条件
| 立地 | 平坦地 |
|---|---|
| その他 | 都市ガス 、 プロパンガス 、 上水道 、 下水道 |
物件備考
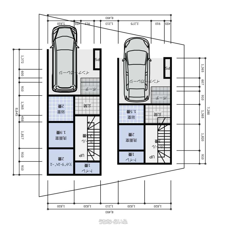
| 備考 | 北側道路は2項道路のため、セットバックを要します。敷地への出入り口は北側を予定しています。 建物の構造は「木造」。 |
|---|
【掲載物件について】
・「うちなーらいふ」は、より正確な情報の提供を心がけておりますが、物件情報に誤りがある場合は、ご連絡をお願い致します。
・ご報告いただいた内容につきましては、掲載提供元である不動産会社に直接送信させていただきます。情報が不足している場合や、事実確認ができない場合などは対応できない場合がございます。
・本フォームは物件情報の誤りに関する報告専用です。賃貸・売買に関するお問い合わせには対応しておりませんので、あらかじめご了承ください。
こちらをクリックして物件の間違いを報告する。














