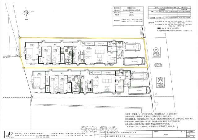
3区画分譲!土地のみ相談可能です。屋良小学校まで徒歩圏内!あしびなあ(公園)や嘉手納町第二保育所近くにあり閑静な住宅地、参考プランあります。お気軽にお問合せください。
物件情報
| 価格 | 2,540万円 | 坪単価 | - |
|---|---|---|---|
| 土地面積 | 167.71m² / 50.73坪 | 地目 | 宅地 |
| 用途地域 | 第二種中高層 | 接道方向 / 道路幅員 | 北8m |
| 建ぺい率 / 容積率 | 60% / 200% | 取引態様 | 売主 |
| 都市計画 | 非線引 | 土地権利 | 所有 |
| 私道負担 | 無し | 引き渡し | 相談 |
| 交通 | 【バス停】中央駐車場前: 徒歩約5分 | 所在地 | 嘉手納町嘉手納 |
| 価格備考 | - | ||
| 更新日 | 2026/04/30 | 公開期限 | 2026/05/13 |
この物件の設備・条件
| 立地 | 平坦地 、 更地 、 地盤調査済 |
|---|---|
| 建築条件 | 建築条件あり |
| その他 | プロパンガス 、 下水道 |
物件備考
| 備考 | 鉄筋コンクリート造平家建 25坪3LDK 土地+建物セット5,365万円 |
|---|
【掲載物件について】
・「うちなーらいふ」は、より正確な情報の提供を心がけておりますが、物件情報に誤りがある場合は、ご連絡をお願い致します。
・ご報告いただいた内容につきましては、掲載提供元である不動産会社に直接送信させていただきます。情報が不足している場合や、事実確認ができない場合などは対応できない場合がございます。
・本フォームは物件情報の誤りに関する報告専用です。賃貸・売買に関するお問い合わせには対応しておりませんので、あらかじめご了承ください。
こちらをクリックして物件の間違いを報告する。

































