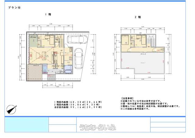
【平屋・2階建て】参考図面詳細にあります‼ 気軽にお問合せお待ちしております(^^♪ ★大里北小学校まで徒歩10分★ ★サンエー食品館嶺井店近く★
売買土地南城市大里字大里 130.94㎡
価格 998万円
物件情報
| 価格 | 998万円 | 坪単価 | - |
|---|---|---|---|
| 土地面積 | 130.94m² / 39.6坪 | 地目 | 宅地 |
| 用途地域 | 無指定 | 接道方向 / 道路幅員 | 北東 |
| 建ぺい率 / 容積率 | 60% / 200% | 取引態様 | 仲介 |
| 都市計画 | 非線引 | 土地権利 | 所有 |
| 私道負担 | - | 引き渡し | 相談 |
| 交通 | 【バス停】南風原: 徒歩約2分 | 所在地 | 南城市大里字大里 |
| 価格備考 | - | ||
| 更新日 | 2026/04/17 | 公開期限 | 2026/04/30 |
この物件の設備・条件
| 立地 | 高台 、 更地 |
|---|---|
| その他 | プロパンガス 、 上水道 |
物件備考
| 備考 | - |
|---|
【掲載物件について】
・「うちなーらいふ」は、より正確な情報の提供を心がけておりますが、物件情報に誤りがある場合は、ご連絡をお願い致します。
・ご報告いただいた内容につきましては、掲載提供元である不動産会社に直接送信させていただきます。情報が不足している場合や、事実確認ができない場合などは対応できない場合がございます。
・本フォームは物件情報の誤りに関する報告専用です。賃貸・売買に関するお問い合わせには対応しておりませんので、あらかじめご了承ください。
こちらをクリックして物件の間違いを報告する。














