全4区画!海に近く、県総合運動公園まで徒歩約5分と、自然とスポーツを身近に感じる環境です。周辺にはローソン県総合運動公園前店やサンエーV21あわせ食品館、Living Design SQUARE Awaseなど生活施設も充実。建築条件なし・自由設計対応で、理想の住まいづくりが叶います。平坦で日当たり良好な地形も魅力。潮乃森ビーチやライカムへのアクセスも良く、暮らしやすさと開放感を兼ね備えたエリアです。
売買土地北中城村美崎 205.2㎡
価格 2,298万円〜2,798万円
物件情報
| 価格 | 2,298万円〜2,798万円 | 坪単価 | - |
|---|---|---|---|
| 土地面積 | 205.2m² / 62.07坪 | 地目 | 宅地 |
| 用途地域 | 第一種中高層 | 接道方向 / 道路幅員 | 北6m、 西6m |
| 建ぺい率 / 容積率 | 60% / 200% | 取引態様 | 専任媒介 |
| 都市計画 | 市街化区域 | 土地権利 | 所有 |
| 私道負担 | 無し | 引き渡し | 相談 |
| 交通 | 【バス停】県総合運動公園前: 徒歩約3分 | 所在地 | 北中城村美崎 地図 |
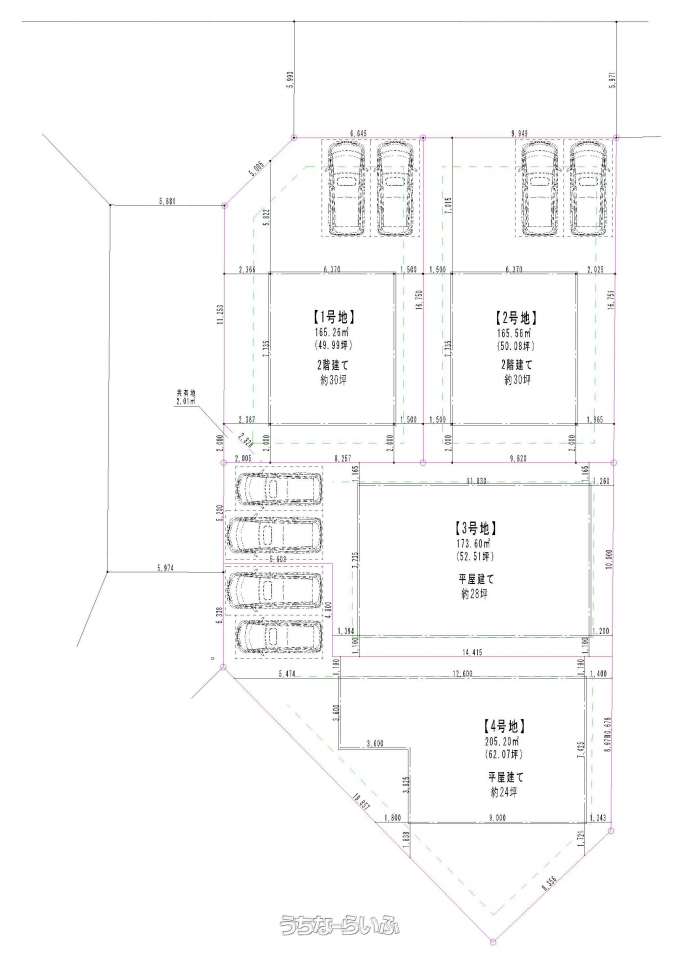
| 価格備考 | 1号地:2798万円、165.26㎡(49.99坪) 2号地:2698万円、165.25㎡(50.08坪) 3号地:2498万円、173.6㎡(52.51坪) 4号地:2298万円、205.2㎡(62.07坪) | ||
| 更新日 | 2026/04/28 | 公開期限 | 2026/05/11 |
この物件の設備・条件
| 立地 | 平坦地 、 更地 、 前道6m以上 、 海まで徒歩10分以内 |
|---|---|
| その他 | 上水道 、 下水道 |
物件備考
| 備考 | 1号地:2798万円、165.26㎡(49.99坪) 2号地:2698万円、165.25㎡(50.08坪) 3号地:2498万円、173.6㎡(52.51坪) 4号地:2298万円、205.2㎡(62.07坪) ◆物件の周辺情報◆ ・北中城小学校(車で約9分) ・北中城中学校(車で約8分) ・県総合運動公園(徒歩約5分) ⇒ 自然とスポーツ、家族の笑顔がそろう場所。沖縄県総合運動公園の魅力とは https://sumaiokinawa.ti-da.net/e12964411.html ・タピック県総ひやごんスタジアム(徒歩約4分) ・ローソン県総合運動公園前店(徒歩約3分) ・マンガ倉庫 泡瀬店(徒歩約4分) ・Living Design SQUARE Awase、TODAY O!K中部店(車で約3分) ・サンエー V21あわせ食品館(車で約4分) ・東部クリニック(車で約2分) ・徳洲会病院(車で約13分) ・イオンモール沖縄ライカム(車で約13分) ・東部海浜開発『潮乃森ビーチ』(車で約3分) ・中城モール(車で約9分) ・中城モール裏のビーチ(車で約9分) |
|---|
【掲載物件について】
・「うちなーらいふ」は、より正確な情報の提供を心がけておりますが、物件情報に誤りがある場合は、ご連絡をお願い致します。
・ご報告いただいた内容につきましては、掲載提供元である不動産会社に直接送信させていただきます。情報が不足している場合や、事実確認ができない場合などは対応できない場合がございます。
・本フォームは物件情報の誤りに関する報告専用です。賃貸・売買に関するお問い合わせには対応しておりませんので、あらかじめご了承ください。
こちらをクリックして物件の間違いを報告する。




































