表面利回り7.46%!(年672万円)
渡慶次小学校徒歩1分!メイン道路の角地にあります。
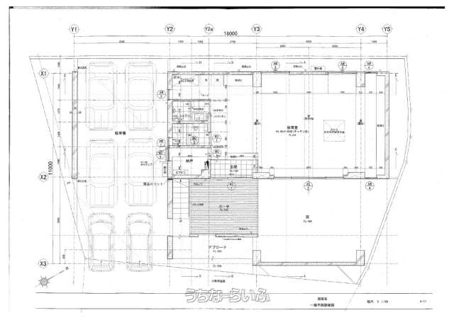
物件情報
| 価格 | 9,000万円 | 所在階/階数 | 2階 (2階建) |
|---|---|---|---|
| 建物面積 | 152.21m² / 46.04坪 | 土地面積 | 296.77m² / 89.77坪 |
| 私道負担 | 有り (53.88m2) 含む | 土地権利 | 所有 |
| 間取り | 1ルーム | ペット | - |
| 築年月 | 2023年06月(築2年) | 地目 | 宅地 |
| 引渡し | - | 都市計画 | 非線引 |
| 用途地域 | 無指定 | 取引態様 | 専属専任媒介 |
| 建ぺい率 / 容積率 | 60% / 200% | 所在地 | 読谷村長浜 |
| 接道方向 / 道路幅員 | 西4m、 北西6m | 構造 | RC(鉄筋コンクリート造) |
| 交通 | - | 価格備考 | - |
| 更新日 | 2026/04/21 | 公開期限 | 2026/05/04 |
物件備考
| 備考 | 1F28万円 2F28万円 合計:月56万円 |
|---|
【掲載物件について】
・「うちなーらいふ」は、より正確な情報の提供を心がけておりますが、物件情報に誤りがある場合は、ご連絡をお願い致します。
・ご報告いただいた内容につきましては、掲載提供元である不動産会社に直接送信させていただきます。情報が不足している場合や、事実確認ができない場合などは対応できない場合がございます。
・本フォームは物件情報の誤りに関する報告専用です。賃貸・売買に関するお問い合わせには対応しておりませんので、あらかじめご了承ください。
こちらをクリックして物件の間違いを報告する。















