「名護市豊原戸建」築9年の収益物件(全2世帯:各3LDK)出ました!駐車場広々☆太陽光収入あり♪23万円で軍検査済みです🎵お気軽にお問い合わせくださいませ😊
その他名護市豊原 707.72㎡
価格 7,000万円
物件情報
| 価格 | 7,000万円 | 所在階/階数 | 1階 (1階建) |
|---|---|---|---|
| 建物面積 | 182m² / 55.05坪 | 土地面積 | 707.72m² / 214.08坪 |
| 私道負担 | 無し | 土地権利 | 所有 |
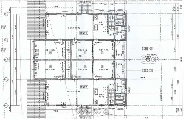
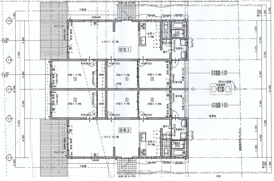
| 間取り | 6LDK ( 洋9.2 洋6.4 洋6.4 洋9.2 洋6.4 洋6.4 LDK38.2 ※全2世帯(各3LDK)) | ペット | - |
| 築年月 | 2016年10月(築9年) | 地目 | 宅地 |
| 引渡し | 相談 | 都市計画 | 非線引 |
| 用途地域 | - | 取引態様 | 仲介 |
| 建ぺい率 / 容積率 | 60% / 200% | 所在地 | 名護市豊原 |
| 接道方向 / 道路幅員 | - | 構造 | RCB(鉄筋コンクリートブロック造) |
| 交通 | 【バス停】豊原: 徒歩約7分 | 価格備考 | - |
| 更新日 | 2026/02/09 | 公開期限 | 2026/02/22 |
この物件の設備・条件
| 投資収益 | 収益物件 |
|---|---|
| その他条件 | バス/トイレ別 、 エアコン付 、 角部屋 、 一人暮らし向き 、 ファミリー向き 、 二世帯住宅 |
物件備考
| 備考 | 固定資産税:確認中 校区:久辺小学校(徒歩10分)、久辺中学校(徒歩16分) 定休日や営業時間以外も事前のご連絡によりご案内できます。 お問い合わせは株式会社YOUへ。 ご連絡お待ちしております。 【注意事項】 ・広告掲載中に売却の場合は予めご了承ください。 ・先着順受付につき、お申込み済みの場合があります。 ・駐車場の空状況や駐車スペースは十分ご確認ください。 ・図面と現況の相違は、現況優先とさせていただきます。 ・最寄バス・学校区の情報は必ずしも正確ではないため、必ずご確認ください。 ・現地周辺の隣接建物及び住環境を充分にご確認ください。 ・借入に際して、登記料・保証料・手数料・火災保険料等が別途必要です。 ・住宅ローンをご利用の場合、収入基準や金融機関の定める一定の要件を満たす必要があります。 ・税制等は必ずお客様自身にて税務署などにご確認下さい。 ■現況: 空き家 |
|---|
【うちなーらいふ】は、より正確な情報の提供を心がけておりますが、物件情報に誤りがある場合は、ご連絡をお願い致します。
ご報告いただいた内容につきましては、掲載提供元である不動産会社に直接送信させていただきます。情報が不足している場合や、事実確認ができない場合などは対応できない場合がございます。
間違いを報告する株式会社YOU
| 住所 | 沖縄県宜野湾市大山 4-1-2 2F 地図 |
|---|---|
| 営業時間 | 月-金 10:00〜12:00 12時〜13時までお昼休み 月-金 13:00〜17:00 |
| 定休日 | 土日祝日・年末年始など(事前の相談により案内対応可能) |
| 免許 | 沖縄県知事(2)第5004号 |
































