外国人用1棟アパート 利回り約6.1% ライカムまで車で約10分の人気物件が登場です!各階1世帯の広めの3LDK・総戸数5世帯・詳細等お気軽にお問い合わせください!他物件HPに多数UP!!
物件情報
| 価格 | 2億500万円 | 所在階/階数 | - |
|---|---|---|---|
| 建物面積 | 359.97m² / 108.89坪 | 土地面積 | 359.97m² / 108.89坪 |
| 私道負担 | - | 土地権利 | 所有 |
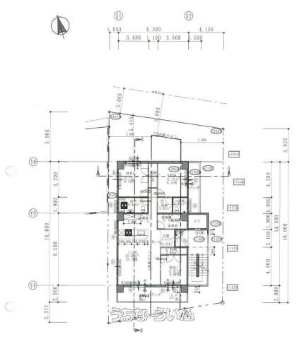
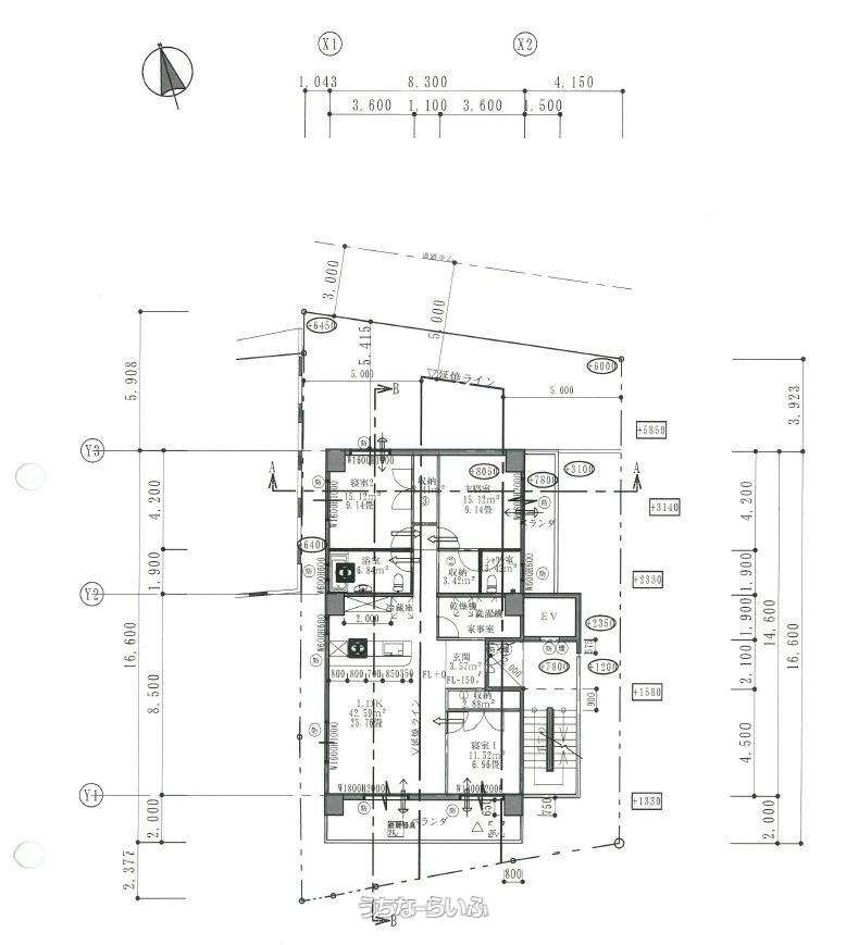
| 間取り | 3LDK ( 洋9.1 洋9.1 洋6.9 LDK25.7) | ペット | - |
| 築年月 | 2020年02月(築6年) | 地目 | 宅地 |
| 引渡し | 相談 | 都市計画 | 非線引 |
| 用途地域 | 未指定 | 取引態様 | 一般媒介 |
| 建ぺい率 / 容積率 | 70% / 200% | 所在地 | 沖縄市比屋根7丁目 地図 |
| 接道方向 / 道路幅員 | 北3.8m、 南6.2m | 構造 | RC(鉄筋コンクリート造) |
| 交通 | 【バス停】比屋根: 徒歩約10分 | 価格備考 | - |
| 更新日 | 2026/03/16 | 公開期限 | 2026/03/29 |
この物件の設備・条件
| 投資収益 | 収益物件 |
|---|---|
| その他条件 | エアコン付 、 エレベーター 、 ファミリー向き |
| 設備備考 | 担当:安倍 |
物件備考
| 備考 | ・1Fは駐車場、2F~6Fは各階1世帯 ・主寝室に専用トイレ、シャワー室、クローゼット付き |
|---|
【掲載物件について】
・「うちなーらいふ」は、より正確な情報の提供を心がけておりますが、物件情報に誤りがある場合は、ご連絡をお願い致します。
・ご報告いただいた内容につきましては、掲載提供元である不動産会社に直接送信させていただきます。情報が不足している場合や、事実確認ができない場合などは対応できない場合がございます。
・本フォームは物件情報の誤りに関する報告専用です。賃貸・売買に関するお問い合わせには対応しておりませんので、あらかじめご了承ください。
こちらをクリックして物件の間違いを報告する。株式会社 レディースエステート&ビジネス
| 住所 | 沖縄県浦添市仲西 3-15-2 地図 |
|---|---|
| 営業時間 | 月-金 08:45〜17:45 |
| 定休日 | 土曜・日曜・祝祭日(年末年始) |
| 免許 | 沖縄県知事免許番号(2)第4961号 |




































