目の前が具志川サンエー!3階建て外人住宅306㎡広々、オーナーチェンジも良し、退去後自分で住んでも良し!広々の4SLDKになります。詳細はお問合せ下さい。
物件情報
| 価格 | 8,000万円 | 所在階/階数 | 123階 (3階建) |
|---|---|---|---|
| 建物面積 | 306.57m² / 92.73坪 | 土地面積 | 697m² / 210.84坪 |
| 私道負担 | 無し | 土地権利 | 所有 |
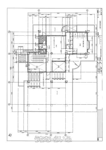
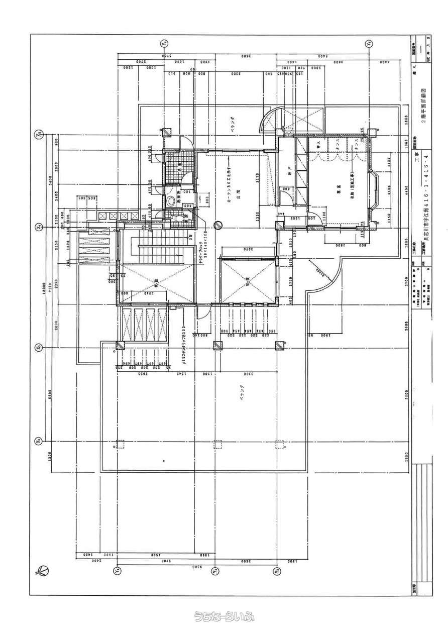
| 間取り | 4SLDK ( 洋10 洋10 和10 和6 SLDK35 ※3階には他約18帖の広間あり) | ペット | 相談 |
| 築年月 | 1994年08月(築31年) | 地目 | 宅地 |
| 引渡し | 相談 | 都市計画 | 非線引 |
| 用途地域 | 第二種住居 | 取引態様 | 仲介 |
| 建ぺい率 / 容積率 | 60% / 200% | 所在地 | うるま市江洲 |
| 接道方向 / 道路幅員 | - | 構造 | RC(鉄筋コンクリート造) |
| 交通 | 【バス停】江洲: 徒歩約3分 | 価格備考 | - |
| 更新日 | 2025/12/04 | 公開期限 | 2025/12/17 |
この物件の設備・条件
| 投資収益 | 収益物件 |
|---|---|
| その他条件 | バス/トイレ別 、 エアコン付 、 ファミリー向き |
物件備考
| 備考 | 現在外国人に賃貸中です。 月額家賃38万円です。 |
|---|
【うちなーらいふ】は、より正確な情報の提供を心がけておりますが、物件情報に誤りがある場合は、ご連絡をお願い致します。
ご報告いただいた内容につきましては、掲載提供元である不動産会社に直接送信させていただきます。情報が不足している場合や、事実確認ができない場合などは対応できない場合がございます。
間違いを報告する









