【Primo Passo】那覇市繁多川で築浅収益物件がでました♪満室稼働中+空室時にも募集~成約までスピーディな物件です!投資をご検討中のお客様は是非お問い合わせ下さい!
物件情報
| 価格 | 8,999万円 | 所在階/階数 | - |
|---|---|---|---|
| 建物面積 | 189.8m² / 57.41坪 | 土地面積 | 165.95m² / 50.2坪 |
| 私道負担 | - | 土地権利 | 所有 |
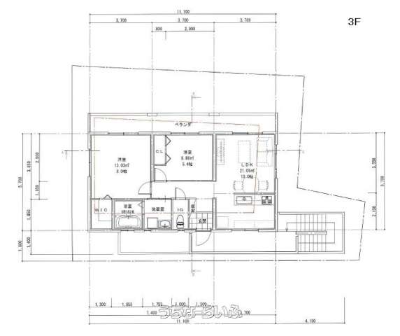
| 間取り | 2LDK ( 洋8 洋5.4 LDK13 ※1~2階:1K(洋5.8畳)) | ペット | - |
| 築年月 | 2020年04月(築5年) | 地目 | 宅地 |
| 引渡し | - | 都市計画 | 市街化区域 |
| 用途地域 | 第一種中高層 | 取引態様 | 一般媒介 |
| 建ぺい率 / 容積率 | 60% / 200% | 所在地 | 那覇市繁多川1丁目 地図 |
| 接道方向 / 道路幅員 | 北4m | 構造 | RCB(鉄筋コンクリートブロック造) |
| 交通 | 【モノレール】安里駅: 徒歩約18分 【バス停】県営繁多川団地入口バス停: 徒歩約4分 | 価格備考 | 利回り【5.4%】 収益目安【486万円/年】 |
| 更新日 | 2025/12/15 | 公開期限 | 2025/12/28 |
物件備考
| 備考 | 【Primo Passo】那覇市繁多川で築浅収益物件がでました♪満室稼働中+空室時にも募集~成約までスピーディな物件です!投資をご検討中のお客様は是非お問い合わせ下さい! |
|---|
【うちなーらいふ】は、より正確な情報の提供を心がけておりますが、物件情報に誤りがある場合は、ご連絡をお願い致します。
ご報告いただいた内容につきましては、掲載提供元である不動産会社に直接送信させていただきます。情報が不足している場合や、事実確認ができない場合などは対応できない場合がございます。
間違いを報告する

























