沖縄都市モノレール「赤嶺駅」「小禄駅」駅近物件!
好立地物件投資はいかがでしょうか☆
物件情報
| 価格 | 3億9,800万円 | 所在階/階数 | 1階 (2階建) |
|---|---|---|---|
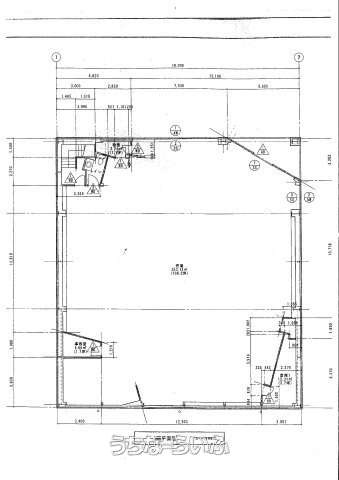
| 建物面積 | - | 土地面積 | 845.86m² / 255.87坪 |
| 私道負担 | 無し | 土地権利 | 所有 |
| 間取り | - | ペット | - |
| 築年月 | - | 地目 | 宅地 |
| 引渡し | 相談 | 都市計画 | 市街化区域 |
| 用途地域 | 近商・第一種住居 | 取引態様 | 仲介 |
| 建ぺい率 / 容積率 | 80% / 200% | 所在地 | 那覇市赤嶺1丁目 地図 |
| 接道方向 / 道路幅員 | 北30m、 南6m | 構造 | S造(鉄骨構造) |
| 交通 | 【モノレール】赤嶺駅: 徒歩約5分 | 価格備考 | - |
| 更新日 | 2026/04/30 | 公開期限 | 2026/05/13 |
この物件の設備・条件
| 投資収益 | 収益物件 |
|---|
物件備考
| 備考 | ◇那覇市広域都市計画事業 小禄金城土地区画整理事業完了地域 小禄金城地区地区計画区域 ◇航空法に基づくGL+建物の高さ制限(海抜48.3m迄)有り。 ◇那覇市景観形成区域 ☆土地(全持分)及び建物の同一買主様への一括売却。 賃貸人の地位及びに敷金返還債務の承継あり。 建物(店舗)は、普通借家契約にて賃貸中。 契約期間:R4.6月末に初回契約期間(15年)満了後、法定更新中。 |
|---|
【掲載物件について】
・「うちなーらいふ」は、より正確な情報の提供を心がけておりますが、物件情報に誤りがある場合は、ご連絡をお願い致します。
・ご報告いただいた内容につきましては、掲載提供元である不動産会社に直接送信させていただきます。情報が不足している場合や、事実確認ができない場合などは対応できない場合がございます。
・本フォームは物件情報の誤りに関する報告専用です。賃貸・売買に関するお問い合わせには対応しておりませんので、あらかじめご了承ください。
こちらをクリックして物件の間違いを報告する。














