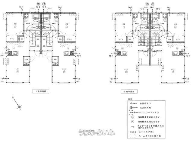
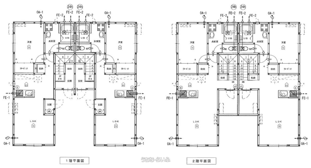
\\人気エリア久松地区にある収益物件です//宮古島では珍しい公営下水道に接続されているので、浄化槽のメンテナスがないのも魅力的。市街地への利便性も良好です 4戸(1LDK 41.4㎡x2戸・51.01㎡x2戸)【表面利回り 5.20% 年間収入312万円】
売アパート宮古島市平良字松原 309㎡
価格 6,000万円
物件情報
| 価格 | 6,000万円 | 所在階/階数 | - |
|---|---|---|---|
| 建物面積 | 202.02m² / 61.11坪 | 土地面積 | 309m² / 93.47坪 |
| 私道負担 | - | 土地権利 | 所有 |
| 間取り | - | ペット | - |
| 築年月 | 2015年09月(築10年) | 地目 | 宅地 |
| 引渡し | 相談 | 都市計画 | 非線引 |
| 用途地域 | 無指定 | 取引態様 | 仲介 |
| 建ぺい率 / 容積率 | 60% / 200% | 所在地 | 宮古島市平良字松原 地図 |
| 接道方向 / 道路幅員 | 西3.8m | 構造 | 木造 |
| 交通 | - | 価格備考 | - |
| 更新日 | 2025/12/16 | 公開期限 | 2025/12/29 |
この物件の設備・条件
| 設備備考 | 公営下水管接続済み |
|---|
物件備考
| 備考 | ※津波災害警戒区域 |
|---|
【うちなーらいふ】は、より正確な情報の提供を心がけておりますが、物件情報に誤りがある場合は、ご連絡をお願い致します。
ご報告いただいた内容につきましては、掲載提供元である不動産会社に直接送信させていただきます。情報が不足している場合や、事実確認ができない場合などは対応できない場合がございます。
間違いを報告するセンチュリー21 宮古不動産
| 住所 | 沖縄県宮古島市平良字西里 826-3 地図 |
|---|---|
| 営業時間 | 平日 10:00〜17:30 |
| 定休日 | 土・日・祝日(土日祝は事前にご予約頂ければ対応可能です。) |
| 免許 | 沖縄県知事免許 (1)第5798号 |

















