利回り/5.7%(家賃太陽光含む)2LDK:8世帯/1LDK:12世帯/計20世帯 名護市宇茂佐の森区画整理の為、住環境良し!今後の家賃上昇見込めます! ジャングリア沖縄まで車で19分の立地
売アパート名護市宇茂佐の森2丁目 1033.77㎡
価格 2億8,000万円
物件情報
| 価格 | 2億8,000万円 | 所在階/階数 | - |
|---|---|---|---|
| 建物面積 | 939.4m² / 284.16坪 | 土地面積 | 1033.77m² / 312.71坪 |
| 私道負担 | 無し | 土地権利 | 所有 |
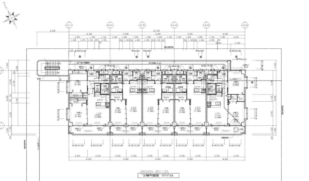
| 間取り | 2LDK ( ※2LDK 8世帯/1LDK 12世帯 合計20世帯) | ペット | - |
| 築年月 | 2015年09月(築10年) | 地目 | 宅地 |
| 引渡し | 相談 | 都市計画 | 市街化区域 |
| 用途地域 | 第一種中高層 | 取引態様 | 仲介 |
| 建ぺい率 / 容積率 | 60% / 200% | 所在地 | 名護市宇茂佐の森2丁目 |
| 接道方向 / 道路幅員 | - | 構造 | RC(鉄筋コンクリート造) |
| 交通 | 【バス停】北農前: 徒歩約5分 | 価格備考 | 土地建物の内訳については別途協議。 |
| 更新日 | 2026/01/27 | 公開期限 | 2026/02/09 |
この物件の設備・条件
| 投資収益 | 収益物件 |
|---|---|
| その他条件 | バス/トイレ別 、 エアコン付 、 大学・専門近く |
物件備考
| 備考 | レントロール等のお問合せは気軽にお問合せ下さい。 また、図面等も御座います。 |
|---|
【うちなーらいふ】は、より正確な情報の提供を心がけておりますが、物件情報に誤りがある場合は、ご連絡をお願い致します。
ご報告いただいた内容につきましては、掲載提供元である不動産会社に直接送信させていただきます。情報が不足している場合や、事実確認ができない場合などは対応できない場合がございます。
間違いを報告する株式会社タニモト 沖縄支店
| 住所 | 沖縄県浦添市仲西 3-5-10 1階 地図 |
|---|---|
| 営業時間 | 月〜土 09:00〜18:00 ※第2.第4土曜日定休日 09:00〜18:00 |
| 定休日 | 日曜日 |
| 免許 | 国土交通大臣免許(1)第10234号 |










