【観光人気エリア♪】美ら海水族館まで車で約10分!ジャングリア沖縄まで車で約25分!
民泊・旅館業可能です☆広い庭、屋上でBBQも可能!コンビニ徒歩1分。お気軽にお問い合わせください。
売店舗本部町浦崎 513.83㎡
価格 3,000万円
物件情報
| 価格 | 3,000万円 | 所在階/階数 | - |
|---|---|---|---|
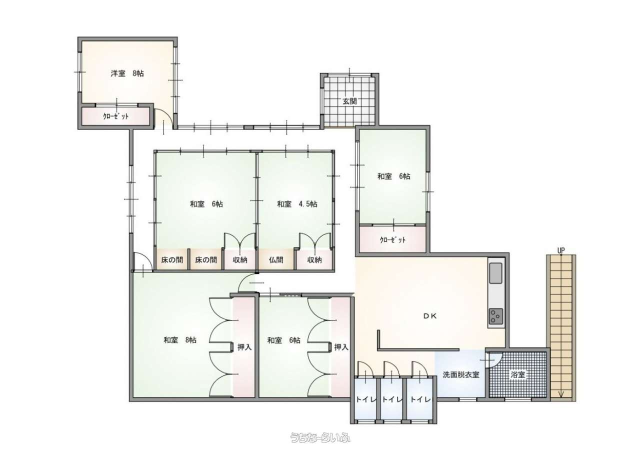
| 建物面積 | 159.18m² / 48.15坪 | 土地面積 | 513.83m² / 155.43坪 |
| 私道負担 | 有り | 土地権利 | 所有 |
| 間取り | 6DK ( 洋8 和8 和6 和6 和6 和4.5) | ペット | - |
| 築年月 | 1983年(築43年) | 地目 | 宅地 |
| 引渡し | 相談 | 都市計画 | 非線引 |
| 用途地域 | 無指定 | 取引態様 | 売主 |
| 建ぺい率 / 容積率 | 60% / 200% | 所在地 | 本部町浦崎 地図 |
| 接道方向 / 道路幅員 | 南、 西 | 構造 | RC(鉄筋コンクリート造) |
| 交通 | 【バス停】浦崎: 徒歩約2分 | 価格備考 | - |
| 更新日 | 2026/03/13 | 公開期限 | 2026/03/26 |
物件備考
| 備考 | 現在居住中の為、物件内覧はご連絡お願いいたします。 美ら海水族館近く!民泊・旅館業可能です☆ |
|---|
【うちなーらいふ】は、より正確な情報の提供を心がけておりますが、物件情報に誤りがある場合は、ご連絡をお願い致します。
ご報告いただいた内容につきましては、掲載提供元である不動産会社に直接送信させていただきます。情報が不足している場合や、事実確認ができない場合などは対応できない場合がございます。
間違いを報告する























