価格変更しました!(5100万➡4900万)月額賃料25万円!太陽光発電年間約44万円!表面利回り約7%!
閑静な住宅街、コンビニ徒歩3分、マンタ公園徒歩8分、各種商業施設も近く利便性の高い場所です!
その他沖縄市海邦2丁目 189.64㎡
価格 4,900万円
物件情報
| 価格 | 4,900万円 | 所在階/階数 | - |
|---|---|---|---|
| 建物面積 | 162.52m² / 49.16坪 | 土地面積 | 189.64m² / 57.37坪 |
| 私道負担 | - | 土地権利 | 所有 |
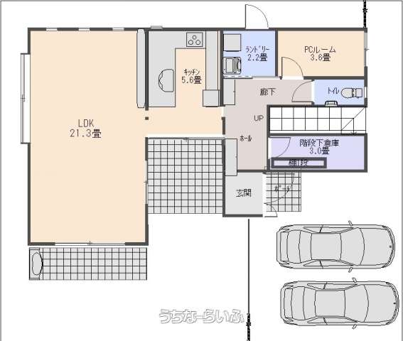
| 間取り | 3SDK ( 洋13.6 洋7.5 洋6.7 SDK26.9 ※PCルーム3.6帖) | ペット | - |
| 築年月 | 2007年09月(築18年) | 地目 | 宅地 |
| 引渡し | 相談 | 都市計画 | 非線引 |
| 用途地域 | 第一種中高層 | 取引態様 | 専任媒介 |
| 建ぺい率 / 容積率 | 60% / 200% | 所在地 | 沖縄市海邦2丁目 地図 |
| 接道方向 / 道路幅員 | 北東6m | 構造 | RC(鉄筋コンクリート造) |
| 交通 | 【バス停】あわせモール前: 徒歩約8分 | 価格備考 | - |
| 更新日 | 2026/01/26 | 公開期限 | 2026/02/08 |
この物件の設備・条件
| その他条件 | バス/トイレ別 、 ファミリー向き |
|---|
物件備考
| 備考 | - |
|---|
【うちなーらいふ】は、より正確な情報の提供を心がけておりますが、物件情報に誤りがある場合は、ご連絡をお願い致します。
ご報告いただいた内容につきましては、掲載提供元である不動産会社に直接送信させていただきます。情報が不足している場合や、事実確認ができない場合などは対応できない場合がございます。
間違いを報告する








