R7年 売上1,630万円以上有り♪シーレイク座喜味内コンドミニアム★★表面利回り9.7%・プール付き♪サウナ完備♪広い庭でBBQできます♪稼働率好調♪設備・家具・備品込みの金額です♪旅館業取得済み◎バストイレ2か所ずつ有り!
コンドミニアム読谷村座喜味 387.29㎡
価格 1億6,800万円
物件情報
| 価格 | 1億6,800万円 | 所在階/階数 | - |
|---|---|---|---|
| 建物面積 | 149.82m² / 45.32坪 | 土地面積 | 387.29m² / 117.15坪 |
| 私道負担 | 無し | 土地権利 | 所有 |
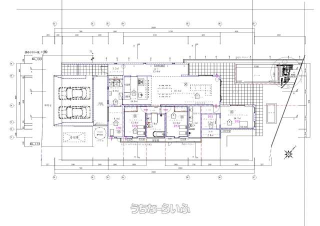
| 間取り | 4SLDK ( ※洗面室・パントリー・バストイレ各2箇所) | ペット | 可 |
| 築年月 | 2014年(築12年) | 地目 | 宅地 |
| 引渡し | 相談 | 都市計画 | 非線引 |
| 用途地域 | 未指定 | 取引態様 | 専属専任媒介 |
| 建ぺい率 / 容積率 | 50% / 100% | 所在地 | 読谷村座喜味 地図 |
| 接道方向 / 道路幅員 | - | 構造 | RC(鉄筋コンクリート造) |
| 交通 | 【バス停】シーレイク座喜味: 徒歩約3分 | 価格備考 | - |
| 更新日 | 2026/05/01 | 公開期限 | 2026/05/14 |
この物件の設備・条件
| その他条件 | バス/トイレ別 、 エアコン付 、 角地 、 角部屋 、 ファミリー向き |
|---|---|
| 設備備考 | プール・サウナ完備 |
物件備考
| 備考 | 1棟貸切ヴィラ★予約が無い日は自分で使えます♪ |
|---|
【掲載物件について】
・「うちなーらいふ」は、より正確な情報の提供を心がけておりますが、物件情報に誤りがある場合は、ご連絡をお願い致します。
・ご報告いただいた内容につきましては、掲載提供元である不動産会社に直接送信させていただきます。情報が不足している場合や、事実確認ができない場合などは対応できない場合がございます。
・本フォームは物件情報の誤りに関する報告専用です。賃貸・売買に関するお問い合わせには対応しておりませんので、あらかじめご了承ください。
こちらをクリックして物件の間違いを報告する。









