【南城市チネンブルーを望む】リビングからは南城市の美しい海。夜には海に一本の月の道が浮かび、朝には太平洋から登る太陽の光に包まれます。ニライカナイ橋の高架下に位置し、敷地面積793坪、建物延べ面積58坪、1FLDKの広さは約29帖とゆったりとした空間です。・宿泊業許可取得済み・ホテル事業や保養施設等にいかがでしょうか。(現在は宿泊施設として運用中)お問い合わせお待ちしております。
物件情報
| 価格 | 3億2,000万円 | 所在階/階数 | - | 
|---|---|---|---|
| 建物面積 | 192.07m² / 58.1坪 | 土地面積 | 2623m² / 793.46坪 | 
| 私道負担 | 無し | 土地権利 | 所有 | 
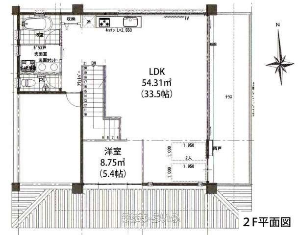
| 間取り | 3LDK ( 洋7.8 洋6.5 洋5.4 ※LDK各階1F:29.6帖、2F33.5帖・1F個室それぞれにトイレ・シャワー有り ) | ペット | - | 
| 築年月 | 2020年04月(築5年) | 地目 | 宅地 | 
| 引渡し | - | 都市計画 | 非線引 | 
| 用途地域 | 無指定 | 取引態様 | 仲介 | 
| 建ぺい率 / 容積率 | 40% / 200% | 所在地 | 南城市知念字知念 地図 | 
| 接道方向 / 道路幅員 | - | 構造 | RC(鉄筋コンクリート造) | 
| 交通 | 【バス停】県営知念団地前: 徒歩約1分 | 価格備考 | 売買金額のほかに、仲介手数料・印紙代・登記費用・固定資産税日割り分・火災保険料等が発生致します。その他実費 | 
| 更新日 | 2025/11/03 | 公開期限 | 2025/11/16 | 
この物件の設備・条件
| その他条件 | デザイナーズ | 
|---|
物件備考
| 備考 | ※現在宿泊所運営中の為、無断の進入はご遠慮下さい。 | 
|---|
【うちなーらいふ】は、より正確な情報の提供を心がけておりますが、物件情報に誤りがある場合は、ご連絡をお願い致します。
ご報告いただいた内容につきましては、掲載提供元である不動産会社に直接送信させていただきます。情報が不足している場合や、事実確認ができない場合などは対応できない場合がございます。
間違いを報告する(株)サザンアイランドコンサル
| 住所 | 沖縄県那覇市山下町 11-1 101 地図 | 
|---|---|
| 営業時間 | 09:00〜18:00 ・ご案内時間に関してはご相談ください。 | 
| 定休日 | 定休日はありません、年末年始はお休みをいただいております。 | 
| 免許 | 沖縄県知事免許(4)第3765号 | 

































