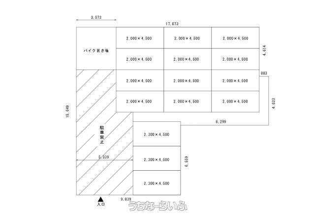
3月から利用可能!!松山1丁目に一括貸し駐車場が出ました。※配置・車種により駐車可能台数が変わります。(12台~15台)※一度現地をご確認の上、ご検討下さい。
物件情報
| 賃料(月) | 24.2万円 | 空き台数 | 15台 |
|---|---|---|---|
| 手数料 | 24.2万円 | 保証金 | - |
| 料金備考 | 契約時に契約月の賃料242,000円(税込)+敷金242,000円+手数料242,000円、計726,000円頂きます。 | ||
| 車庫証明 | 不可 | 所在地 | 那覇市松山1丁目 地図 |
| 保証会社 | - | ||
| 更新日 | 2026/01/19 | 公開期限 | 2026/02/01 |
この物件の設備・条件
| その他 | 24時間利用可 、 アスファルト舗装 、 平置き 、 大型車可 |
|---|
物件備考
| 備考 | 4.5m×2.0m区画で12台縦列、2.3m×4.5m3台並列駐車可能です。 |
|---|
【うちなーらいふ】は、より正確な情報の提供を心がけておりますが、物件情報に誤りがある場合は、ご連絡をお願い致します。
ご報告いただいた内容につきましては、掲載提供元である不動産会社に直接送信させていただきます。情報が不足している場合や、事実確認ができない場合などは対応できない場合がございます。
間違いを報告する




