【価格再調整しました】20帖以上のゆとり広々リビング! 駐車場2台無料・徒歩圏内に全国チェ-ンの飲食店・国道近くで高速へのアクセスも良好な立地です!! 現在入居者あり。お問い合わせは担当の高江洲までご連絡ください。【090-1941-5632】
売買マンションプレミアムコート知花 沖縄市知花5丁目
価格 3,000万円
物件情報
| 価格 | 3,000万円 | 専有面積 | 58.1m² / 17.57坪 |
|---|---|---|---|
| 管理費 | 13,000円 | 修繕積立金 | 3,700円 |
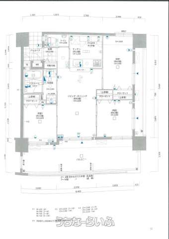
| 間取り | 1LDK ( 洋6 LDK23 ※3LDKを1LDKへ変更してます。) | ||
| 築年月 | 2020年06月(築5年) | 敷地面積 | 58.11m² / 17.58坪 |
| 駐車場 | 2台無料 縦列 | 引き渡し | 相談 |
| バルコニー | - | 土地権利 | 所有 |
| 総戸数 | 42戸 | 管理組合 | - |
| 管理形態 | 全部委託 | 所在階/階数 | 6階 (14階建) |
| 取引態様 | 専属専任媒介 | 建物構造 | RC(鉄筋コンクリート造) |
| ペット | 可 | 所在地 | 沖縄市知花5丁目 地図 |
| 交通 | 【バス停】農民研修センター前: 徒歩約4分 | 価格備考 | - |
| 更新日 | 2026/04/28 | 公開期限 | 2026/05/11 |
この物件の設備・条件
| キッチン | 給湯 、 ガスコンロ 、 対面式キッチン(カウンターキッチン) 、 コンロ3口以上 |
|---|---|
| バス・トイレ | バス/トイレ別 、 独立洗面所 、 浴室乾燥機 、 浴室1坪以上 、 温水洗浄便座 |
| 家具・家電 | 冷房 、 暖房 |
| セキュリティ | インターフォン 、 防犯カメラ 、 TVホン(TVモニタ付インターホン) 、 オートロック |
| 室内設備 | 室内洗濯機置き場 、 オール洋間 |
| 収納 | シューズボックス |
| 建物設備・サービス | エレベーター 、 宅配ボックス 、 プロパンガス |
| 放送・通信 | インターネット対応 |
| 位置 | 2階以上 、 角部屋 、 南向き部屋 |
| 構造 | フローリング |
| 土地権利 | 所有権 |
| その他条件 | ペット可・相談 、 日当たり良し 、 LDK15畳以上 、 全居室6畳以上 |
物件備考
| 備考 | - |
|---|
【掲載物件について】
・「うちなーらいふ」は、より正確な情報の提供を心がけておりますが、物件情報に誤りがある場合は、ご連絡をお願い致します。
・ご報告いただいた内容につきましては、掲載提供元である不動産会社に直接送信させていただきます。情報が不足している場合や、事実確認ができない場合などは対応できない場合がございます。
・本フォームは物件情報の誤りに関する報告専用です。賃貸・売買に関するお問い合わせには対応しておりませんので、あらかじめご了承ください。
こちらをクリックして物件の間違いを報告する。



























