【新登場 いつでも内覧可能】駐車場2台×リフォーム済み×角部屋3LDK♪2面バルコニー付きで採光・通風ともに良好♪陽明高等学校近くの落ち着いた住環境♪周辺にはスーパーなど生活施設がそろい、日々の暮らしを快適にサポート♪室内はキッチン・浴室・洗面台・トイレ・給湯器をはじめ、床・建具・クロスまで丁寧に一新し、ダウンライト設置やハウスクリーニングまで実施♪
住宅ローンアドバイザーなど資格保有のスタッフが購入・売却まで親身にサポート!住まい探しは【ウルズン】へお気軽にご相談ください♪
パノラマ画像
物件情報
| 価格 | 2,990万円 | 専有面積 | 80.2m² / 24.26坪 |
|---|---|---|---|
| 管理費 | 12,100円 | 修繕積立金 | 9,680円 |
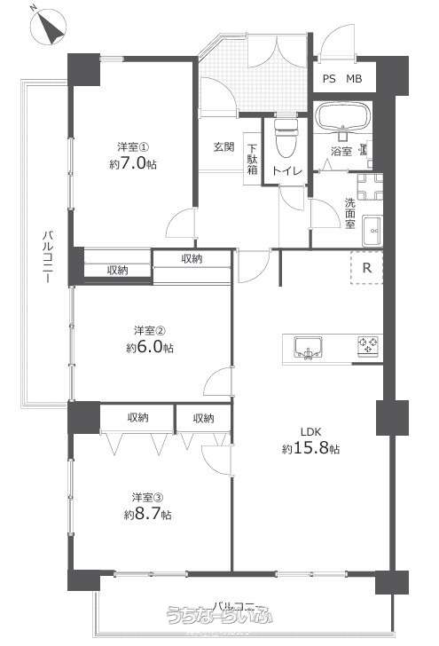
| 間取り | 3LDK ( 洋7 洋6 洋8.7 LDK15.8 ※15.8帖のLDKを中心に、7帖・6帖・8.7帖の洋室を配置した使い勝手の良い3LDK。リビングは家具配置がしやすく、家族が集まる明るく開放的な空間です。各洋室はそれぞれ十分な広さを確保しており、主寝室や子ども部屋、ワークスペースなどライフスタイルに合わせた使い分けが可能。全体的に動線が良く、プライベートと共有空間のバランスが取れた間取りです。) | ||
| 築年月 | 1993年03月(築32年) | 敷地面積 | - |
| 駐車場 | 1台5,000円 並列 •付近有り2台目7,000円 並列 ※敷地内駐車場引継ぎ可能 | 引き渡し | 相談 |
| バルコニー | 17.93m² / 5.42坪 | 土地権利 | 所有 |
| 総戸数 | 16戸 | 管理組合 | 有り |
| 管理形態 | 全部委託 | 所在階/階数 | 4階 (7階建) |
| 取引態様 | 仲介 | 建物構造 | RC(鉄筋コンクリート造) |
| ペット | 不可 | 所在地 | 浦添市大平 地図 |
| 交通 | 【モノレール】古島駅: 徒歩約25分 【バス停】陽明高校前: 徒歩約5分 | 価格備考 | ご契約時には収入印紙代や手付金など初期費用が必要となります。 金額は物件や状況により異なりますが、担当スタッフが丁寧にご説明します♪FPや住宅ローンアドバイザーの有資格者が在籍しており、将来のライフプランに寄り添った無理のない返済計画をご提案いたします! さらに、お客様一人ひとりの家族構成やライフスタイルに合わせ、安心して長く暮らせるマイホーム購入をしっかりサポートいたします! |
| 更新日 | 2026/01/31 | 公開期限 | 2026/02/13 |
この物件の設備・条件
| キッチン | 給湯 、 ガスコンロ 、 対面式キッチン(カウンターキッチン) 、 システムキッチン 、 コンロ3口以上 |
|---|---|
| バス・トイレ | バス/トイレ別 、 ユニットバス 、 浴槽 、 独立洗面所 、 浴室乾燥機 、 温水洗浄便座 |
| セキュリティ | インターフォン 、 防犯カメラ 、 オートロック |
| 室内設備 | 室内洗濯機置き場 、 オール洋間 |
| 収納 | シューズボックス 、 全居室収納 |
| 建物設備・サービス | エレベーター 、 プロパンガス |
| 位置 | 2階以上 、 南向き部屋 |
| 立地 | 南向き |
| 構造 | フローリング |
| 土地権利 | 所有権 |
| 駐車場 | 屋内駐車場 、 屋根付駐車場 、 駐輪場 |
| その他条件 | 日当たり良し 、 眺望良し 、 静かな場所 、 LDK15畳以上 、 全居室6畳以上 |
| 証明書類あり | 完了検査済証 |
| リフォーム・リノベーション | 水回り設備交換(キッチン・浴室・洗面・トイレ) 、 内装(床・壁・天井など) |
| 設備備考 マンション備考 | 詳細は担当まで 詳細は担当まで |
物件備考
| 備考 | 【リフォーム内容】 ◆ システムキッチン新規交換 ◆ ユニットバス新規交換 ◆ 洗面化粧台新規交換 ◆ 温水洗浄機能付トイレ新規交換 ◆ガス給湯器交換 ◆ 洗濯機防水パン新規交換 ◆ 建具新規交換 ◆ フローリング張替 ◆ クッションフロア張替 ◆ クロス張替 ◆ ダウンライト設置 ◆ カーテンレール交換 ◆ ハウスクリーニング 他 🏠【株式会社ウルズン|地域密着型不動産】🏠 数ある物件の中から当ページをご覧いただき、誠にありがとうございます! ウルズンは宜野湾市を拠点に、地域に根差した不動産会社として活動しております。 私たちは掲載中の物件だけでなく、ネット非公開の新築・中古・土地・マンション情報も豊富に取り扱い中! 「初めてのマイホーム購入で不安…」「売却を検討しているけど相場が分からない…」といった方に、安心してご相談いただけるよう多彩なサポート体制を整えています。 🌟 柔軟なご案内体制 •平日のお仕事終わりや早朝、土日祝日もご案内可能。 •事前予約で夜21時以降の内覧も対応OK。照明も完備しているため、昼夜問わず安心してチェックいただけます。 •LINEでのスピーディーなやり取りも導入し、「気になる物件があったらすぐ相談」できる体制。 ✅ お忙しい方でもご自身のスケジュールに合わせて柔軟に内覧が可能です。 🌟 構造・住宅のご不安を丁寧にサポート •「木造住宅とRC造(鉄筋コンクリート造)の違いって?」「台風や地震に強いのは?」 •実際の建物を見ながら、構造・耐震性・保証の有無を分かりやすくご説明します。 •新築・中古問わず、保証内容やアフターサービスの範囲も明確にご案内。 ✅ 初めての住宅購入でよくある疑問を現地で解消し、安心してご検討いただけます。 🌟 住宅ローン相談もトータルサポート •住宅ローンアドバイザーの資格を持つ担当者が在籍。 •「いくら借りられる?」「月々いくら払える?」といった基本から、銀行ごとの金利差まで丁寧にご説明。 •地方銀行・ネット銀行の仮審査比較や提携銀行の優遇金利もサポート。 •「頭金ゼロでも買える?」「転職したばかりだけど審査は通る?」など、個別ケースも安心してご相談ください。 ✅ 無理のない返済計画を立てることで、将来の生活設計も安心に。 ✨自己資金0円でもマイホーム購入可能!✨ 諸費用も住宅ローンに組み込み利用いただけます。 住宅ローンアドバイザーが、お客様一人ひとりに最適なプランをご提案いたします☆ 📌ご紹介可能金融機関 沖縄銀行、琉球銀行、鹿児島銀行、沖縄海邦銀行、コザ信用金庫、JAおきなわ、その他多数 ✨フラット35のご案内(長期固定金利ローン)✨ •将来の金利上昇リスクを避けたい方や、これから教育費が必要な子育て世帯にオススメ! •フラット35は保証料がかからないため、初期費用を抑えて利用可能。 •弊社ではフラット35を取り扱う金融機関との提携もございます。 📌 提携金融機関 ファミリーライフサービス、日本モーゲージサービス、その他多数 🌟 補助金・給付金のご案内 •住宅ローン減税・すまい給付金・こどもエコすまい支援事業など、多様な支援制度をご紹介。 •各自治体の子育て世帯向け補助金も最新情報をキャッチしてお伝えします。 •申請条件の確認から必要書類の準備までしっかりサポート。 ✅ 「知らなかった」で受け取れないケースを防ぎ、安心して制度を活用できます。 🌟 物件選びだけでなく“暮らし”をご提案 •学区や通学路の安全性、保育園・幼稚園の情報も提供。 •通勤ルートや渋滞状況、近隣のスーパーや病院など生活に欠かせない情報を事前に把握できます。 •災害時の避難場所やハザードマップも確認し、安心できる住まいをご提案。 ✅ 家を買った後の「こんなはずじゃなかった…」を防ぐための徹底サポート。 🌟 売却のご相談もお任せください •「まずは相場を知りたい」という方には無料査定を実施。 •インターネット掲載だけでなく、地域のネットワークを活かした販売活動。 •買取保証付きのご提案や、早期売却のご相談も対応可能。 •土地・建物・事業用物件まで幅広く取り扱います。 ✅ 売却から購入までワンストップで対応できるのが弊社の強みです。 🌟 明るく元気なスタッフが徹底サポート •地域密着で活動しているため、周辺情報や生活環境の知識も豊富。 •不動産の専門知識だけでなく、FP資格保有者も在籍しライフプラン全体を見据えたアドバイスが可能。 •「初めてで不安…」という方も、納得いただけるまで何度でもご説明します。 🌟 購入後のアフターフォロー •引渡し後の不具合や保証対応もご相談ください。 •リフォームやリノベーション業者のご紹介も可能。 •将来の売却や住み替えも含めて長期的にサポート。 ✅ “買ったら終わり”ではなく“買った後からが本当のお付き合い”を大切にしています。 🌟 お客様からの口コミ・高評価をいただいています ウルズンは「地域密着」「親身な対応」「分かりやすい説明」を大切にしており、多くのお客様からGoogle口コミなどで嬉しいお声をいただいております。 •「初めての住宅購入で不安でしたが、担当者さんが丁寧に説明してくれて安心して契約できました」 •「売却相談をお願いしましたが、査定から契約までスムーズで、想定以上の価格で売れました!」 「安心して相談できる不動産会社」として、地元の皆様に選ばれ続けています。 🌟 お客様からよくあるご質問(FAQ) Q. 頭金がなくても購入できますか? → 住宅ローンやフラット35を活用すれば可能です。 Q. 中古住宅の保証はありますか? → 物件によって瑕疵保険や保証がついているケースもあり、事前に確認いただけます。 Q. 売却時に費用はかかりますか? → 仲介手数料や登記費用など、費用の詳細をご説明いたします。 🌟 まとめ 株式会社ウルズンは、 •柔軟なご案内体制 •安心の住宅ローン相談 •補助金・給付金サポート •地域に根差した生活提案 •売却から購入までの一貫サポート を強みとし、お客様の「不安」を「安心」に変える不動産パートナーです。 🏡 マイホームの購入・売却をご検討の際は、ぜひお気軽に【ウルズン】までご相談ください! |
|---|
【うちなーらいふ】は、より正確な情報の提供を心がけておりますが、物件情報に誤りがある場合は、ご連絡をお願い致します。
ご報告いただいた内容につきましては、掲載提供元である不動産会社に直接送信させていただきます。情報が不足している場合や、事実確認ができない場合などは対応できない場合がございます。
間違いを報告する






































