令和6年3月完成予定!★ペット可物件★ 1棟売り 年間収入(満室時)14,676,000円 ◎満室時表面利回り5.0%!
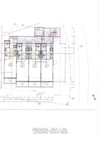
1K:15室 1LDK:2室 駐車場:2台(敷地内)お気軽にお問合せください! 
売買マンショングランデコート那覇県庁前
価格 2億9,350万円
物件情報
| 価格 | 2億9,350万円 | 専有面積 | 496.1m² / 150.07坪 | 
|---|---|---|---|
| 管理費 | - | 修繕積立金 | - | 
| 間取り | 1K | ||
| 築年月 | 2024年03月(築1年) | 敷地面積 | 246.95m² / 74.7坪 | 
| 駐車場 | 2台20,000円 | 引き渡し | 相談 | 
| バルコニー | - | 土地権利 | 所有 | 
| 総戸数 | 17戸 | 管理組合 | - | 
| 管理形態 | - | 所在階/階数 | - | 
| 取引態様 | 専任媒介 | 建物構造 | S造(鉄骨構造) | 
| ペット | 可 ※匹数、犬種等相談可 | 所在地 | 那覇市松尾1丁目 地図 | 
| 交通 | 【モノレール】県庁前駅: 徒歩約12分 | 価格備考 | - | 
| 更新日 | 2025/10/27 | 公開期限 | 2025/11/09 | 
この物件の設備・条件
| その他条件 | ペット可・相談 | 
|---|
物件備考
| 備考 | ご相談は、お気軽にお問合せください。 管理契約条件付き プランに関しては軽微な変更の可能性あり | 
|---|
【うちなーらいふ】は、より正確な情報の提供を心がけておりますが、物件情報に誤りがある場合は、ご連絡をお願い致します。
ご報告いただいた内容につきましては、掲載提供元である不動産会社に直接送信させていただきます。情報が不足している場合や、事実確認ができない場合などは対応できない場合がございます。
間違いを報告する
 住居用
 住居用 事業用
 事業用 土地
 土地 駐車場
 駐車場 土地
 土地 マンション
 マンション 一戸建て
 一戸建て その他
 その他



















