2024年2月築・オーシャンビュー最上階10階角部屋・未入居!
マンション
売買マンションReve石垣島真栄里
価格 5,000万円
物件情報
| 価格 | 5,000万円 | 専有面積 | 54.32m² / 16.43坪 |
|---|---|---|---|
| 管理費 | 22,100円 | 修繕積立金 | 3,800円 |
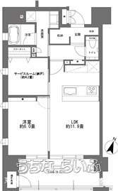
| 間取り | 1LDK ( 洋6 LDK11.9 ※サービスルーム(納戸)/ 約4.2畳) | ||
| 築年月 | 2024年02月(築1年) | 敷地面積 | 823.81m² / 249.2坪 |
| 駐車場 | 1台20,000円 ※1台/10,000円~20,000(月額) | 引き渡し | 相談 |
| バルコニー | 10.24m² / 3.1坪 | 土地権利 | 持分 |
| 総戸数 | 44戸 | 管理組合 | 有り |
| 管理形態 | 全部委託 | 所在階/階数 | 10階 (10階建) |
| 取引態様 | 仲介 | 建物構造 | RC(鉄筋コンクリート造) |
| ペット | 可 ※規約あり | 所在地 | 石垣市真栄里 地図 |
| 交通 | 【バス停】サンエー前: 徒歩約3分 | 価格備考 | - |
| 更新日 | 2025/10/31 | 公開期限 | 2025/11/13 |
この物件の設備・条件
| キッチン | 対面式キッチン(カウンターキッチン) 、 システムキッチン 、 コンロ3口以上 、 食器洗い乾燥機 |
|---|---|
| バス・トイレ | バス/トイレ別 、 浴槽 、 独立洗面所 、 浴室乾燥機 |
| 室内設備 | 室内洗濯機置き場 |
| 建物設備・サービス | エレベーター 、 宅配ボックス 、 プロパンガス |
| 位置 | 角部屋 、 最上階 、 南向き部屋 |
| 構造 | フローリング 、 南面バルコニー |
| 土地権利 | 所有権 |
| その他条件 | ペット可・相談 、 海が見える |
物件備考
| 備考 | LDK、洋室からコーラルブルーの美しい海をご堪能ください。LDK(約11.9畳)と洋室(約6.0畳)は引戸を開けて一体利用も可。各階の共用廊下はホテルライクな内廊下。天候や潮風の状況に関わらず快適にご利用頂けます。 |
|---|
【うちなーらいふ】は、より正確な情報の提供を心がけておりますが、物件情報に誤りがある場合は、ご連絡をお願い致します。
ご報告いただいた内容につきましては、掲載提供元である不動産会社に直接送信させていただきます。情報が不足している場合や、事実確認ができない場合などは対応できない場合がございます。
間違いを報告する東急リゾート株式会社 沖縄センター
| 住所 | 沖縄県那覇市首里池端町 11 地図 |
|---|---|
| 営業時間 | 09:30〜18:00 |
| 定休日 | 毎週 火曜日・水曜日 【11/3(月祝)臨時休業】 |
| 免許 | 国土交通大臣免許(8)第4195号 |

























