内覧予約受付中!※現在ご入居中 嘉数中学校まで徒歩5分!沖縄カトリック小・中高校まで徒歩約2分!嬉しい駐車場2台(縦列)\(^o^)/海抜60m!スーパー、病院なども近くにあり、共用部分から見えるオーシャンビューも最高です!(*´艸`*)人気の真栄原エリアで新生活をはじめませんか?是非お問い合わせください!
物件情報
| 価格 | 4,490万円 | 専有面積 | 67.68m² / 20.47坪 |
|---|---|---|---|
| 管理費 | 7,720円 | 修繕積立金 | 4,400円 |
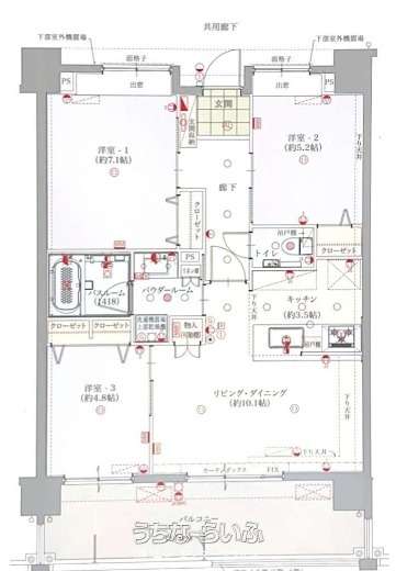
| 間取り | 3LDK ( 洋7.1 洋5.2 洋4.8 LDK10.1) | ||
| 築年月 | 2022年02月(築4年) | 敷地面積 | - |
| 駐車場 | 2台5,500円 縦列 | 引き渡し | 相談 |
| バルコニー | 15m² / 4.53坪 | 土地権利 | 所有 |
| 総戸数 | - | 管理組合 | 有り |
| 管理形態 | 全部委託 | 所在階/階数 | 6階 (10階建) |
| 取引態様 | 仲介 | 建物構造 | RC(鉄筋コンクリート造) |
| ペット | 可 | 所在地 | 宜野湾市真栄原3丁目 地図 |
| 交通 | 【バス停】真栄原バス停:: 徒歩約4分 | 価格備考 | - |
| 更新日 | 2026/04/14 | 公開期限 | 2026/04/27 |
この物件の設備・条件
| キッチン | 給湯 、 省エネ給湯器 、 高効率給湯器 、 浄水器 、 ガスコンロ 、 対面式キッチン(カウンターキッチン) 、 システムキッチン 、 コンロ3口以上 、 食器洗い乾燥機 |
|---|---|
| バス・トイレ | バス/トイレ別 、 ユニットバス 、 浴槽 、 独立洗面所 |
| セキュリティ | TVホン(TVモニタ付インターホン) 、 オートロック 、 セキュリティ会社契約 、 管理人あり(管理人常駐) |
| 室内設備 | 室内洗濯機置き場 、 出窓 、 オール洋間 |
| 収納 | シューズボックス 、 全居室収納 |
| 建物設備・サービス | エレベーター 、 宅配ボックス 、 プロパンガス |
| 放送・通信 | BS(BSアンテナ) 、 CS(CSアンテナ) 、 インターネット無料 |
| 位置 | 2階以上 、 南向き部屋 |
| 立地 | 南向き |
| 構造 | フローリング 、 南面バルコニー |
| 土地権利 | 所有権 |
| 駐車場 | 屋内駐車場 |
| その他条件 | ペット可・相談 、 ゴミ毎日OK 、 海が見える 、 日当たり良し 、 静かな場所 、 環境にやさしい |
物件備考
| 備考 | ※現在居住中の為、内覧は要調整 |
|---|
【掲載物件について】
・「うちなーらいふ」は、より正確な情報の提供を心がけておりますが、物件情報に誤りがある場合は、ご連絡をお願い致します。
・ご報告いただいた内容につきましては、掲載提供元である不動産会社に直接送信させていただきます。情報が不足している場合や、事実確認ができない場合などは対応できない場合がございます。
・本フォームは物件情報の誤りに関する報告専用です。賃貸・売買に関するお問い合わせには対応しておりませんので、あらかじめご了承ください。
こちらをクリックして物件の間違いを報告する。(株)エン エンタープライズ
| 住所 | 沖縄県那覇市天久 2-31-16 サンセットパレス新都心203号室 地図 |
|---|---|
| 営業時間 | 10:00〜19:00 |
| 定休日 | 水曜日 |
| 免許 | 沖縄県知事免許(4)第3982号古物商許可番号第971042200582号 |

































