本島全域を見渡す高級住宅街。高台なので海や山や空に囲まれたリゾート景観が楽しめます。夜の佇まいはヨーロッパ宮殿イメージです。※賃貸中の為オーナチェンジとなります。
物件情報
| 価格 | 6,900万円 | 専有面積 | 119.27m² / 36.08坪 |
|---|---|---|---|
| 管理費 | 15,100円 | 修繕積立金 | 7,200円 |
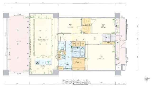
| 間取り | 3LDK ( 洋6.1 洋6.1 洋11.4 LDK21.1 ※大型ウォークスルークローゼットあり) | ||
| 築年月 | 2019年04月(築7年) | 敷地面積 | 6777m² / 2050.04坪 |
| 駐車場 | 1台無料 並列 •2台目5,000円 並列 | 引き渡し | 相談 |
| バルコニー | 32.87m² / 9.94坪 | 土地権利 | 借地 |
| 総戸数 | 42戸 | 管理組合 | 有り |
| 管理形態 | 全部委託 | 所在階/階数 | 3階 (8階建) |
| 取引態様 | 一般媒介 | 建物構造 | RC(鉄筋コンクリート造) |
| ペット | 可 | 所在地 | 北中城村喜舎場 地図 |
| 交通 | 【バス停】屋宜原: 徒歩約13分 | 価格備考 | - |
| 更新日 | 2026/04/28 | 公開期限 | 2026/05/11 |
この物件の設備・条件
| キッチン | 給湯 、 高効率給湯器 、 浄水器 、 ガスコンロ 、 対面式キッチン(カウンターキッチン) 、 システムキッチン 、 アイランド型キッチン 、 コンロ3口以上 、 パントリー(食器・食品の収納庫) |
|---|---|
| バス・トイレ | バス/トイレ別 、 ユニットバス 、 浴槽 、 シャンプードレッサー 、 独立洗面所 、 浴室乾燥機 、 温水洗浄便座 |
| 家具・家電 | 冷房 、 暖房 |
| セキュリティ | インターフォン 、 防犯カメラ 、 TVホン(TVモニタ付インターホン) 、 オートロック 、 セキュリティ会社契約 |
| 室内設備 | 室内洗濯機置き場 、 オール洋間 、 バリアフリー |
| 収納 | ウォークインクローゼット 、 シューズボックス 、 全居室収納 |
| 建物設備・サービス | エレベーター 、 宅配ボックス 、 プロパンガス |
| 放送・通信 | BS(BSアンテナ) 、 インターネット対応 、 CS(CSアンテナ) 、 Wi-Fi 、 インターネット無料 |
| 位置 | 南向き部屋 |
| 立地 | 低層住宅地 、 南向き |
| 構造 | フローリング 、 南面バルコニー 、 ワイドバルコニー 、 ハイグレードマンション 、 リゾートマンション |
| 駐車場 | ハイルーフ駐車場空きあり |
| その他条件 | ペット可・相談 、 ゴミ毎日OK 、 海が見える 、 日当たり良し 、 眺望良し 、 静かな場所 、 LDK15畳以上 、 外人住宅 、 デザイナーズ |
| 証明書類あり | 完了検査済証 、 瑕疵保険(国交省指定法人)による保証 |
| 設備備考 マンション備考 | 20帖以上のリビングとアイランドキッチン。南向きの風通しと明るいお部屋です。また、共用広場もあり、ドッグランにも最適です。ガス乾燥機付き 普通借地(定期借地ではありません。) |
物件備考
| 備考 | 360°を見渡す絶景の場所。ライカムエリアとは違った眺めとヨーロッパ宮殿のような佇まい。現在は外人賃貸中です。 |
|---|
【掲載物件について】
・「うちなーらいふ」は、より正確な情報の提供を心がけておりますが、物件情報に誤りがある場合は、ご連絡をお願い致します。
・ご報告いただいた内容につきましては、掲載提供元である不動産会社に直接送信させていただきます。情報が不足している場合や、事実確認ができない場合などは対応できない場合がございます。
・本フォームは物件情報の誤りに関する報告専用です。賃貸・売買に関するお問い合わせには対応しておりませんので、あらかじめご了承ください。
こちらをクリックして物件の間違いを報告する。(株)エン エンタープライズ
| 住所 | 沖縄県那覇市天久 2-31-16 サンセットパレス新都心203号室 地図 |
|---|---|
| 営業時間 | 10:00〜19:00 |
| 定休日 | 水曜日 |
| 免許 | 沖縄県知事免許(4)第3982号古物商許可番号第971042200582号 |



























