★子育て世代にはウレシイ、商業施設と繋がって、保育園や小児科、ドラックストアが商業施設内にあります。
★地上10階建てマンションの9階に位置し、海見える、眺望良し・通風ともに良好。★マックスバリュは24時間営業。
★ペット条件:成長時の体高40cm程度、体重12kg程度かつ抱えられる大きさの犬・猫合計2匹。
★近隣に、イオンモールライカム、徳洲会病院もあり、生活環境が整ったエリアになります♪
売買マンショントラスト山里ヒルズ 沖縄市山里1丁目
価格 5,980万円
物件情報
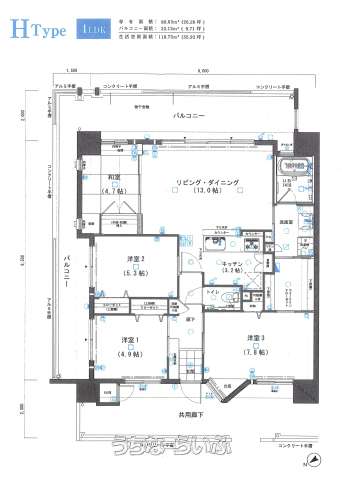
| 価格 | 5,980万円 | 専有面積 | 86.63m² / 26.2坪 |
|---|---|---|---|
| 管理費 | 8,960円 | 修繕積立金 | 11,900円 |
| 間取り | 4LDK ( 洋7.8 洋5.3 洋4.9 和4.7 LDK16.2) | ||
| 築年月 | 2018年04月(築7年) | 敷地面積 | 7992.76m² / 2417.8坪 |
| 駐車場 | 2台11,000円 縦列 ※所有者変更に伴い、駐車区画が変更する可能性が有ります。 | 引き渡し | 指定有 (R8.1/1以降の引渡し。) |
| バルコニー | 32.12m² / 9.71坪 | 土地権利 | 所有 |
| 総戸数 | 69戸 | 管理組合 | 有り |
| 管理形態 | 全部委託 | 所在階/階数 | 9階 (地上10階/地下2階建) |
| 取引態様 | 仲介 | 建物構造 | RC(鉄筋コンクリート造) |
| ペット | 可 ※使用細則にて、条件有ります。 | 所在地 | 沖縄市山里1丁目 地図 |
| 交通 | 【バス停】山里: 徒歩約1分 | 価格備考 | ★ネットワーク関連費用、月額1,210円。 |
| 更新日 | 2026/03/06 | 公開期限 | 2026/03/19 |
この物件の設備・条件
| キッチン | 給湯 、 ガスコンロ 、 対面式キッチン(カウンターキッチン) 、 システムキッチン 、 コンロ3口以上 、 パントリー(食器・食品の収納庫) |
|---|---|
| バス・トイレ | バス/トイレ別 、 ユニットバス 、 浴槽 、 独立洗面所 、 浴室乾燥機 、 浴室1坪以上 、 浴室窓あり |
| セキュリティ | 防犯カメラ 、 TVホン(TVモニタ付インターホン) 、 オートロック |
| 室内設備 | 室内洗濯機置き場 、 出窓 |
| 収納 | ウォークインクローゼット 、 シューズボックス 、 全居室収納 |
| 建物設備・サービス | エレベーター 、 宅配ボックス 、 プロパンガス |
| 放送・通信 | BS(BSアンテナ) 、 インターネット対応 、 CS(CSアンテナ) |
| 位置 | 2階以上 、 角部屋 |
| 構造 | 和室有 、 フローリング 、 ワイドバルコニー 、 4LDK以上 |
| 土地権利 | 所有権 |
| 駐車場 | 屋内駐車場 、 屋根付駐車場 、 駐輪場 |
| その他条件 | ペット可・相談 、 海が見える 、 日当たり良し 、 眺望良し |
| 証明書類あり | 完了検査済証 |
物件備考
| 備考 | ★商業施設は雨に濡れる事無く行けます。★民泊事業は禁止。 |
|---|
【うちなーらいふ】は、より正確な情報の提供を心がけておりますが、物件情報に誤りがある場合は、ご連絡をお願い致します。
ご報告いただいた内容につきましては、掲載提供元である不動産会社に直接送信させていただきます。情報が不足している場合や、事実確認ができない場合などは対応できない場合がございます。
間違いを報告する







