人気の美浜エリアにほど近い、北谷町宮城のコンシェルジュつきリゾートマンションです。敷地内プールやゲストルーム等、共有施設も充実!24時間セキュリティや、夜間警備員を配置するなど安全面にも配慮◎駐車1台。米軍賃貸参考賃料:18万円前後
売買マンションアルトゥーレ美浜 5号 北谷町宮城
価格 5,300万円
物件情報
| 価格 | 5,300万円 | 専有面積 | 71.79m² / 21.72坪 |
|---|---|---|---|
| 管理費 | 15,645円 | 修繕積立金 | 11,060円 |
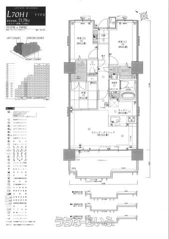
| 間取り | 3LDK ( 洋6.5 洋5.1 和4.1 LDK16.5) | ||
| 築年月 | 2010年01月(築16年) | 敷地面積 | - |
| 駐車場 | 1台3,300円 並列 ※立体駐車場。区画変更の可能性あり | 引き渡し | 相談 |
| バルコニー | 14m² / 4.23坪 | 土地権利 | 所有 |
| 総戸数 | 421戸 | 管理組合 | - |
| 管理形態 | 全部委託 | 所在階/階数 | 5階 (19階建) |
| 取引態様 | 一般媒介 | 建物構造 | RC(鉄筋コンクリート造) |
| ペット | 可 ※使用細則に準ずる | 所在地 | 北谷町宮城 地図 |
| 交通 | 【バス停】浜川漁港前: 徒歩約1分 | 価格備考 | - |
| 更新日 | 2026/03/18 | 公開期限 | 2026/03/31 |
この物件の設備・条件
| キッチン | 給湯 、 浄水器 、 ガスコンロ 、 対面式キッチン(カウンターキッチン) 、 システムキッチン 、 コンロ3口以上 、 食器洗い乾燥機 |
|---|---|
| バス・トイレ | バス/トイレ別 、 浴槽 、 シャンプードレッサー 、 独立洗面所 、 温水洗浄便座 |
| セキュリティ | 防犯カメラ 、 TVホン(TVモニタ付インターホン) 、 オートロック 、 セキュリティ会社契約 、 管理人あり(管理人常駐) |
| 室内設備 | 室内洗濯機置き場 |
| 収納 | シューズボックス 、 全居室収納 |
| 建物設備・サービス | エレベーター 、 宅配ボックス 、 コンシェルジュサービス |
| 放送・通信 | BS(BSアンテナ) 、 インターネット対応 、 CS(CSアンテナ) |
| 位置 | 2階以上 |
| 構造 | 和室有 、 住宅性能評価書付き 、 リゾートマンション |
| 土地権利 | 所有権 |
| その他条件 | ペット可・相談 、 海が見える 、 日当たり良し 、 眺望良し 、 LDK15畳以上 |
| 証明書類あり | 完了検査済証 |
| 設備備考 マンション備考 | プール、売店、カフェなど共有施設充実! |
物件備考
| 備考 | 『美浜タウンリゾート・アメリカンビレッジ』までお散歩圏内! 敷地内プールやゲストルーム、売店、カフェ等、共有施設も充実! 24時間セキュリティや、夜間警備員を配置するなど、安全面にも配慮されています。 マンションの隣はスーパーがあり、日々のお買い物も便利ですよ♪ 海沿いを散歩しながら、オープンカフェでひと息。 沖縄のミックスカルチャーを身近に感じつつも、ゆったりとした時間を楽しみたい方にはぴったりなマンションです。 <参考>賃料:18万円前後 利回り:約4.07%(18万円の場合) |
|---|
【掲載物件について】
・「うちなーらいふ」は、より正確な情報の提供を心がけておりますが、物件情報に誤りがある場合は、ご連絡をお願い致します。
・ご報告いただいた内容につきましては、掲載提供元である不動産会社に直接送信させていただきます。情報が不足している場合や、事実確認ができない場合などは対応できない場合がございます。
・本フォームは物件情報の誤りに関する報告専用です。賃貸・売買に関するお問い合わせには対応しておりませんので、あらかじめご了承ください。
こちらをクリックして物件の間違いを報告する。沖縄クチコミ不動産とまとハウジング
| 住所 | 沖縄県浦添市伊祖 3-2-1 地図 |
|---|---|
| 営業時間 | 月~金 10:00〜18:00 土 10:00〜17:00 |
| 定休日 | 日曜日・祝日・旧盆・年末・年始 |
| 免許 | 沖縄県知事免許(6)第3328号 |











