この物件についてお問い合わせ営 09:00〜18:00 (事前にご予約いただけましたら営業時間外も対応可能です) 定 日曜・祝日・お盆・年末年始(事前にご予約いただけましたら休日も対応可能です)
北谷町吉原に、フルリノベーション済みの魅力的な平屋戸建てが登場しました✨
室内は壁・天井・床・電気・水回りまで一新され、清潔感と居心地の良さが広がります🏡✨
駐車場は縦列で2台OK🚗🚗 敷地内には倉庫もあり、趣味や収納にも大活躍です🌱📦
物件情報
| 家賃 | 15万円 | 共益費 | ナシ |
|---|---|---|---|
| 敷金/礼金 | 1ヶ月/ナシ | 保証金 | ナシ |
| 仲介手数料 | 1.1ヶ月 | ||
| その他費用 | - | 概算初期費用敷金 + 礼金 + 保証金 + 前家賃(1ヶ月分)+ 前管理賃(共益費1ヶ月分)+ 仲介手数料 + その他費用の合計です。 | - |
| 料金備考 | ・家賃保証委託料【月額家賃の60%〜100%】 ・安心サポートC【1,925円/月】 初期費用もお気軽にお問い合わせください。 | ||
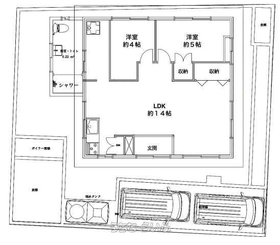
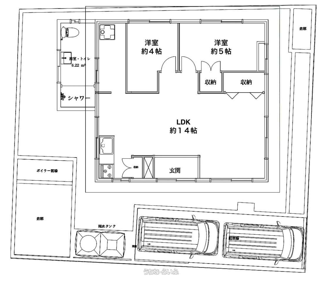
| 間取り | 2LDK ( 洋4 洋5 LDK14) | ||
| 部屋番号 | 1号 | 所在階/階数 | 1階 (1階建) |
| ペット | 可 ※小型犬・猫2匹まで(ペット保証金が必要です) | 専有面積 | - |
| 取引態様 | 専任媒介 | 入居 | 相談 (2026年1月頃) |
| 契約期間 | 定期借家契約 (2年) | 更新料 | 3.3万円 |
| 保証会社 | 加入要 | ||
| 所在地 | 北谷町吉原 地図 | ||
| 駐車場 | 1台無料 •2台目無料 縦列 ※要車種確認 | 交通 | - |
| 更新日 | 2025/12/15 | 公開期限 | 2025/12/28 |
この物件の設備・条件
| キッチン | 給湯 |
|---|---|
| 家具・家電 | 冷房 、 暖房 |
| 室内設備 | 室内洗濯機置き場 、 オール洋間 |
| 建物設備 | プロパンガス |
| その他条件 | リノベーション済 、 リフォーム済 |
物件備考
| 備考 | 間取りは洋室4帖・洋室5帖・LDK14帖のゆったり2LDK🛋️ LDKは家具配置がしやすい形状で、家族団らんの時間をしっかり確保できます。 キッチン横には便利な収納もあり、生活動線がスムーズ🍳✨ 浴室・トイレは6.22㎡の広めユニットで快適🚿🚽 倉庫や雨水タンクなど敷地内設備も充実しており、屋外スペースの豊かさも魅力です🌿 北谷中心部や国道58号へのアクセスも良く、生活利便性と落ち着いた住環境がバランス良く揃った立地です📍 |
|---|
建物情報

| 物件名 | (仮称)Aハウス | 築年月 | 1970年08月(築55年) |
|---|---|---|---|
| 建物構造 | CB(コンクリート・ブロック造) | 建物階数 | 1階建 |
【うちなーらいふ】は、より正確な情報の提供を心がけておりますが、物件情報に誤りがある場合は、ご連絡をお願い致します。
ご報告いただいた内容につきましては、掲載提供元である不動産会社に直接送信させていただきます。情報が不足している場合や、事実確認ができない場合などは対応できない場合がございます。
間違いを報告するアムールハウジング
| 住所 | 沖縄県うるま市みどり町 4-7-1 地図 |
|---|---|
| 営業時間 | 09:00〜18:00 (事前にご予約いただけましたら営業時間外も対応可能です) |
| 定休日 | 日曜・祝日・お盆・年末年始(事前にご予約いただけましたら休日も対応可能です) |
| 免許 | 沖縄県知事免許(1)第5832号 |






















