※☆お気軽にお問い合わせください♪
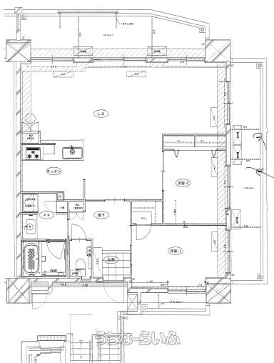
築浅分譲マンション2面バルコニーでエンジョイ♪広々25.7帖のリビング
駅近、商業施設・コンビニ・公園近くありです(^^♪
☆ノンタッチキー・24時間ゴミ出しOk・玄関収納・高速インターネット対応・ペット専用足洗い
物件情報
| 家賃 | 22万円 | 共益費 | 7,000円 |
|---|---|---|---|
| 敷金/礼金 | 1ヶ月/1ヶ月 | 保証金 | ナシ |
| 仲介手数料 | - | ||
| その他費用 | - | 概算初期費用敷金 + 礼金 + 保証金 + 前家賃(1ヶ月分)+ 前管理賃(共益費1ヶ月分)+ 仲介手数料 + その他費用の合計です。 | - |
| 料金備考 | 保証会社・火災保険要加入 | ||
| 間取り | 2LDK ( 洋6.7 洋5.1 LDK24.7) | ||
| 部屋番号 | 4階号 | 所在階/階数 | - |
| ペット | 可 ※ペット飼育の場合は別途ペット保証金1ヶ月となります。 | 専有面積 | 80.69m² / 24.41坪 |
| 取引態様 | 専属専任媒介 | 入居 | 相談 |
| 契約期間 | 定期借家契約 | 更新料 | 2.2万円 |
| 保証会社 | 加入要 | ||
| 所在地 | 那覇市金城3丁目 地図 | ||
| 駐車場 | 1台無料 並列 屋内 ※※軽・小型・普通車要相談。 | 交通 | 【モノレール】小禄駅: 徒歩約7分 |
| 更新日 | 2025/12/11 | 公開期限 | 2025/12/24 |
・近隣の学校 ※ うちなーらいふ調査につき学校区の物件か不動産会社へご確認ください
小学校区域
金城小学校(金城1~5丁目 全域)
中学校区域
金城中学校(金城1~5丁目 全域)
この物件の設備・条件
| キッチン | 給湯 、 浄水器 、 ガスコンロ 、 対面式キッチン 、 システムキッチン |
|---|---|
| バス・トイレ | バス/トイレ別 、 ユニットバス 、 浴槽 、 シャンプードレッサー 、 独立洗面所 、 温水洗浄便座 |
| 家具・家電 | 冷房 、 暖房 |
| セキュリティ | インターフォン 、 TVモニタ付インターホン 、 オートロック 、 管理人あり |
| 室内設備 | 室内洗濯機置き場 、 オール洋間 、 バリアフリー |
| 建物設備 | エレベーター 、 宅配ボックス 、 都市ガス |
| 放送・通信 | BS 、 インターネット対応 、 CS |
| 収納 | ウォークインクローゼット 、 シューズボックス |
| 位置 | 角部屋 、 南向き部屋 |
| 駐車場 | 駐輪場 |
| その他条件 | 日当たり良し |
| 設備備考 | エアコン2台・浴室乾燥機・防犯カメラ、ペット専用足洗い場、24時間可能ゴミ置き場 |
物件備考
| 備考 | - |
|---|
建物情報
| 物件名 | レーヴグランディ小禄金城 | 築年月 | 2018年03月(築7年) |
|---|---|---|---|
| 建物構造 | RC(鉄筋コンクリート造) | 建物階数 | 8階建 |
【うちなーらいふ】は、より正確な情報の提供を心がけておりますが、物件情報に誤りがある場合は、ご連絡をお願い致します。
ご報告いただいた内容につきましては、掲載提供元である不動産会社に直接送信させていただきます。情報が不足している場合や、事実確認ができない場合などは対応できない場合がございます。
間違いを報告する(株)リアルシティ・コーポレーション
| 住所 | 沖縄県那覇市天久 2-28-9 Ryusビル2F 地図 |
|---|---|
| 営業時間 | 09:30〜18:30 |
| 定休日 | 日曜日・祝祭日・GW・年末年始 |
| 免許 | 沖縄県知事免許(4)第3726号 |
































