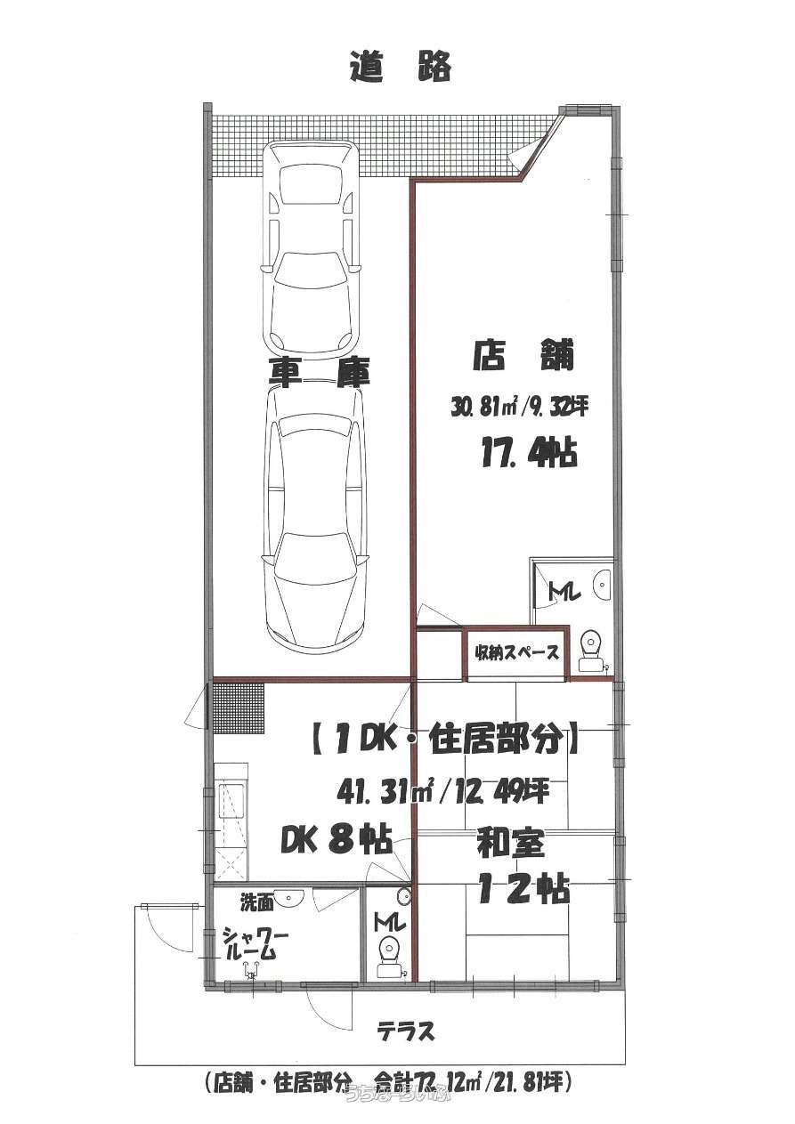
人気のエリア沖縄市一番街の裏側◎住宅兼店舗です♪住宅部分は広々とした1DK◎店舗は事務所、物販など飲食店は不可です◆駐車場2台付(縦列)は魅力◎ペット相談可◆お気軽にお問い合わせくださいませ◎
物件情報
| 家賃 | 20万円 | 共益費 | ナシ |
|---|---|---|---|
| 敷金/礼金 | 1ヶ月/ナシ | 保証金 | ナシ |
| 仲介手数料 | 22万円 | ||
| その他費用 | - | 概算初期費用敷金 + 礼金 + 保証金 + 前家賃(1ヶ月分)+ 前管理賃(共益費1ヶ月分)+ 仲介手数料 + その他費用の合計です。 | - |
| 料金備考 | *火災保険料が掛かります。毎月維持セキュリティ費が1000円が掛かります。ペット礼金があります。 | ||
| 間取り | 1DK ( 和12 DK8) | ||
| 部屋番号 | - | 所在階/階数 | 1階 (2階建) |
| ペット | 相談 | 専有面積 | 41.31m² / 12.49坪 |
| 取引態様 | 専属専任媒介 | 入居 | 相談 |
| 契約期間 | 定期借家契約 (5年) | 更新料 | - |
| 保証会社 | 加入要 契約の際に家賃保証料が掛かります。 | ||
| 所在地 | 沖縄市中央1丁目 地図 | ||
| 駐車場 | 2台無料 縦列 屋内 | 交通 | 【バス停】胡屋: 徒歩約4分 |
| 更新日 | 2026/04/04 | 公開期限 | 2026/04/17 |
・近隣の学校 ※ うちなーらいふ調査につき学校区の物件か不動産会社へご確認ください
小学校区域
コザ小学校(中央1丁目 全域)
中学校区域
コザ中学校(中央1丁目 全域)
この物件の設備・条件
| キッチン | 給湯 、 ガスコンロ |
|---|---|
| バス・トイレ | バス/トイレ別 |
| 家具・家電 | 冷房 |
| 建物設備 | プロパンガス |
物件備考
| 備考 | *住宅兼店舗です☆住宅部分41㎡(1DK)★店舗部分30.61㎡です◎店舗は飲食店は不可です◆事務所、物販、美容関係など◇定期借家契約(5年)になります♪詳しくはお気軽にお問合せ下さいませ◎ |
|---|
建物情報

| 物件名 | Mount ZEN | 築年月 | 1972年12月(築53年) |
|---|---|---|---|
| 建物構造 | RC(鉄筋コンクリート造) | 建物階数 | 2階建 |
【掲載物件について】
・「うちなーらいふ」は、より正確な情報の提供を心がけておりますが、物件情報に誤りがある場合は、ご連絡をお願い致します。
・ご報告いただいた内容につきましては、掲載提供元である不動産会社に直接送信させていただきます。情報が不足している場合や、事実確認ができない場合などは対応できない場合がございます。
・本フォームは物件情報の誤りに関する報告専用です。賃貸・売買に関するお問い合わせには対応しておりませんので、あらかじめご了承ください。
こちらをクリックして物件の間違いを報告する。



























