【家具家電付きならSWING】来店せずにご契約出来ます。★4月23日入居可能★ 敷金・仲介料なし★ 家具・家電付き1Kで、入居後すぐに新生活がスタートできます♪ 沖縄南インター近く! 水道料込み!連帯保証人不要!(条件あり)
パノラマ画像
物件情報
| 家賃 | 5.3万円 | 共益費 | 6,500円 |
|---|---|---|---|
| 敷金/礼金 | ナシ/1ヶ月 | 保証金 | ナシ |
| 仲介手数料 | ナシ | ||
| その他費用 | - | 概算初期費用敷金 + 礼金 + 保証金 + 前家賃(1ヶ月分)+ 前管理賃(共益費1ヶ月分)+ 仲介手数料 + その他費用の合計です。 | - |
| 料金備考 | 【契約時】・鍵交換費用:16,500円・火災保険18,000円 ・入居者サポートシステム:18,975円 ・抗菌施工代:18,040円 ・保証委託料:100~120%・クリーニング費:41,800円 【毎月】・水道代込み・環境維持費:550円・Wi-Fi利用時(30日):3,630円 ・家賃引落手数料:525円 【毎年】・年間保証委託料:10,000円 | ||
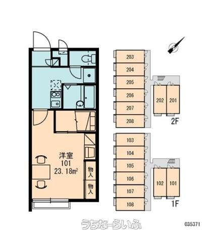
| 間取り | 1K ( 洋8 K2 ※1階はフローリング、2階はカーペット) | ||
| 部屋番号 | 206号 | 所在階/階数 | 2階 (2階建) |
| ペット | 不可 | 専有面積 | 23.18m² / 7.01坪 |
| 取引態様 | 仲介 | 入居 | 指定有 (★4月23日入居可能★) |
| 契約期間 | 2年更新 | 更新料 | 1.65万円 |
| 保証会社 | 加入要 保証委託料:家賃総額の100%~120% | ||
| 所在地 | 沖縄市南桃原4丁目 地図 | ||
| 駐車場 | 1台6,600円 ※駐輪場(2輪)無料です♪ | 交通 | 【バス停】第5ゲート: 徒歩約8分 |
| 更新日 | 2026/03/05 | 公開期限 | 2026/03/18 |
・近隣の学校 ※ うちなーらいふ調査につき学校区の物件か不動産会社へご確認ください
小学校区域
山内小学校(南桃原4丁目 全域)
中学校区域
山内中学校(南桃原4丁目 全域)
この物件の設備・条件
| キッチン | 給湯 、 IHコンロ |
|---|---|
| バス・トイレ | バス/トイレ別 、 ユニットバス 、 浴槽 、 温水洗浄便座 |
| 家具・家電 | 冷房 、 暖房 、 洗濯機 、 乾燥機 、 冷蔵庫 、 テレビ 、 家具/家電付き |
| セキュリティ | TVモニタ付インターホン |
| 室内設備 | 室内洗濯機置き場 、 オール洋間 |
| 建物設備 | プロパンガス |
| 放送・通信 | インターネット対応 、 CS 、 Wi-Fi |
| 収納 | シューズボックス |
| 位置 | 南向き部屋 |
| 駐車場 | 駐輪場 |
| その他条件 | 静かな場所 、 保証人不要 、 外国人入居可 |
| 設備備考 | 家具家電付き、テレビ、冷蔵庫、洗濯機、電子レンジ、カーテン、テーブル、椅子、浴室乾燥機、ウォシュレット |
物件備考
| 備考 | ★沖縄県内の『家具家電付き物件』や『連帯保証人ナシ物件』は、私たち【株式会社スウィング沖縄】にお任せください★♪契約金のお見積もりも無料です♪初期費用に関しましてもお気軽にご相談ください(*^▽^*) |
|---|
建物情報

| 物件名 | レオパレス町田 | 築年月 | 2008年03月(築18年) |
|---|---|---|---|
| 建物構造 | RC(鉄筋コンクリート造) | 建物階数 | 2階建 |
【うちなーらいふ】は、より正確な情報の提供を心がけておりますが、物件情報に誤りがある場合は、ご連絡をお願い致します。
ご報告いただいた内容につきましては、掲載提供元である不動産会社に直接送信させていただきます。情報が不足している場合や、事実確認ができない場合などは対応できない場合がございます。
間違いを報告する(株)スウィング沖縄 那覇本社
| 住所 | 沖縄県那覇市銘苅 3-12-39 地図 |
|---|---|
| 営業時間 | 月ー金 09:30〜18:30 土・日・祝 10:00〜17:00 |
| 定休日 | 水曜・第5日曜・年末年始 |
| 免許 | 沖縄県知事免許(4)第4101号 |

































