外人住宅 隣地に公開空地あり。 ドッグランも活用できます。BBQ 家庭菜園 OK! ペット可*敷金条件付き *入居日相談があれば伺います。
賃貸一戸建て沖縄北IC約4分の好立地 池原外人住宅 沖縄市池原4丁目
賃料39万円
物件情報
| 家賃 | 39万円 | 共益費 | ナシ |
|---|---|---|---|
| 敷金/礼金 | 1ヶ月/1ヶ月 | 保証金 | 1ヶ月 |
| 仲介手数料 | 1ヶ月 | ||
| その他費用 | - | 概算初期費用敷金 + 礼金 + 保証金 + 前家賃(1ヶ月分)+ 前管理賃(共益費1ヶ月分)+ 仲介手数料 + その他費用の合計です。 | - |
| 料金備考 | 火災保険、保証会社要加入 | ||
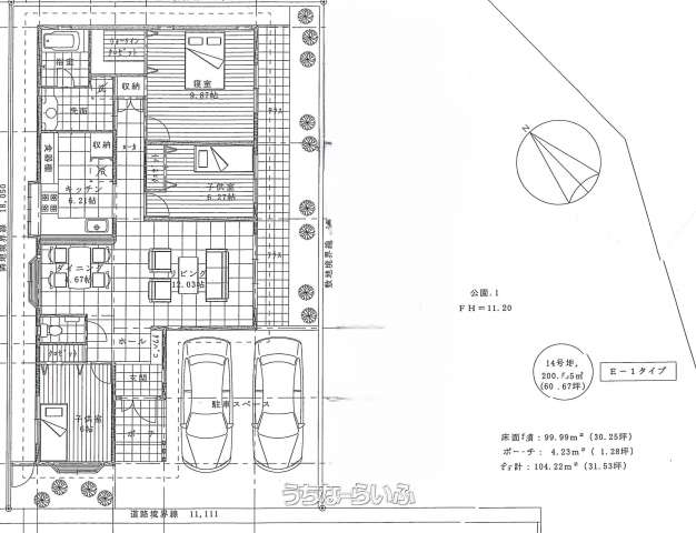
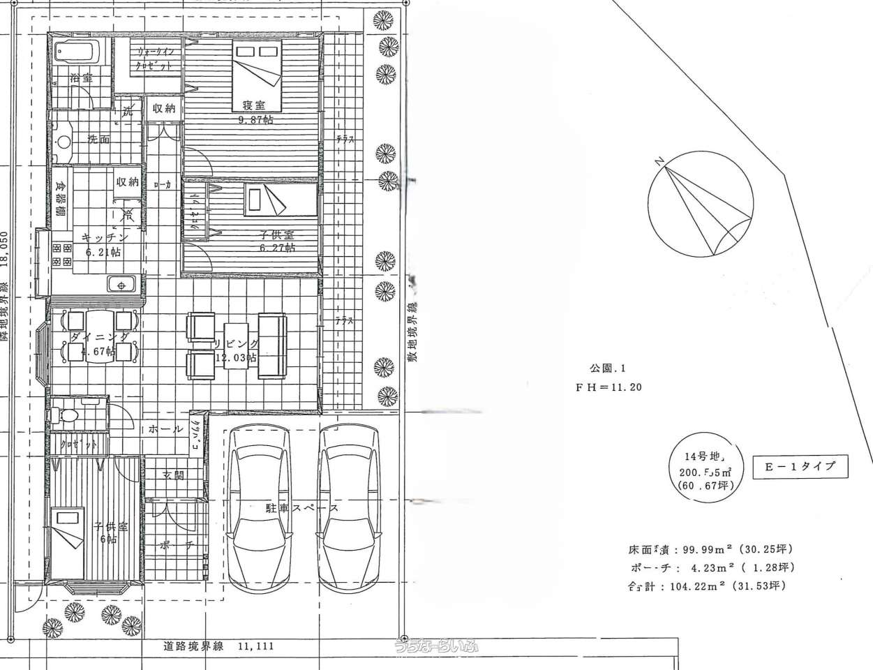
| 間取り | 3LDK ( 洋9.8 洋6 洋6 LDK23) | ||
| 部屋番号 | - | 所在階/階数 | 1階 (1階建) |
| ペット | 可 | 専有面積 | 99m² / 29.94坪 |
| 取引態様 | 代理 | 入居 | 相談 |
| 契約期間 | 定期借家契約 (2年) | 更新料 | ナシ |
| 保証会社 | 加入要 | ||
| 所在地 | 沖縄市池原4丁目 地図 | ||
| 駐車場 | 2台無料 ※*場合によっては3台停めることも可能です。 | 交通 | - |
| 更新日 | 2026/04/14 | 公開期限 | 2026/04/27 |
・近隣の学校 ※ うちなーらいふ調査につき学校区の物件か不動産会社へご確認ください
小学校区域
北美小学校(池原4丁目 全域)
中学校区域
美里中学校(池原4丁目 全域)
この物件の設備・条件
| キッチン | 給湯 、 ガスコンロ 、 L字型キッチン 、 対面式キッチン 、 システムキッチン |
|---|---|
| バス・トイレ | バス/トイレ別 、 浴槽 、 シャンプードレッサー 、 独立洗面所 |
| 家具・家電 | 冷房 |
| セキュリティ | インターフォン 、 TVモニタ付インターホン |
| 室内設備 | オール洋間 、 バリアフリー |
| 建物設備 | プロパンガス |
| 収納 | ウォークインクローゼット |
| 位置 | 角部屋 |
| 駐車場 | 駐輪場 |
| その他条件 | 日当たり良し 、 外国人入居可 、 外人住宅 、 デザイナーズ |
物件備考
| 備考 | 外人住宅 隣地に公開空地あり。 ドッグランも活用できます。BBQ 家庭菜園OK! ペット可*敷金条件付き *入居日相談があれば伺います。 |
|---|
建物情報
| 物件名 | 沖縄北IC約4分の好立地 池原外人住宅 | 築年月 | 2011年07月(築14年) |
|---|---|---|---|
| 建物構造 | RC(鉄筋コンクリート造) | 建物階数 | 1階建 |
【掲載物件について】
・「うちなーらいふ」は、より正確な情報の提供を心がけておりますが、物件情報に誤りがある場合は、ご連絡をお願い致します。
・ご報告いただいた内容につきましては、掲載提供元である不動産会社に直接送信させていただきます。情報が不足している場合や、事実確認ができない場合などは対応できない場合がございます。
・本フォームは物件情報の誤りに関する報告専用です。賃貸・売買に関するお問い合わせには対応しておりませんので、あらかじめご了承ください。
こちらをクリックして物件の間違いを報告する。(株)エン エンタープライズ
| 住所 | 沖縄県那覇市天久 2-31-16 サンセットパレス新都心203号室 地図 |
|---|---|
| 営業時間 | 10:00〜19:00 |
| 定休日 | 水曜日 |
| 免許 | 沖縄県知事免許(4)第3982号古物商許可番号第971042200582号 |

























