【ウィングシャトー古謝メダーリア】エアコン全室設置!駐車場2台付き3LDK♪イオンやニトリが徒歩約5分!もう少し足を延ばすとカインズやスターバックス等もあり発展著しいエリアです♪ハイグレードな設備を備えているオール電化物件♪
360°VR画像
物件情報
| 家賃 | 15万円 | 共益費 | 5,000円 |
|---|---|---|---|
| 敷金/礼金 | 1ヶ月/1ヶ月 | 保証金 | ナシ |
| 仲介手数料 | 1.1ヶ月 | ||
| その他費用 | - | 概算初期費用敷金 + 礼金 + 保証金 + 前家賃(1ヶ月分)+ 前管理賃(共益費1ヶ月分)+ 仲介手数料 + その他費用の合計です。 | - |
| 料金備考 | ■家賃保証会社:賃料総額の30%(保証会社により変動):月額2% ■火災保険:18,000円■仲介手数料:1.1ヶ月分■ペット飼育料あり | ||
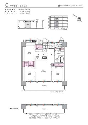
| 間取り | 3LDK ( 洋6.4 洋5 洋5 LDK15.4) | ||
| 部屋番号 | 503号 | 所在階/階数 | 5階 (9階建) |
| ペット | 可 ※ペット飼育料5,000円※管理規約、ペット飼育細則に準ずる | 専有面積 | 70.1m² / 21.21坪 |
| 取引態様 | 専任媒介 | 入居 | 相談 (2026年2月中旬) |
| 契約期間 | 2年更新 | 更新料 | 0円 |
| 保証会社 | 加入要 ■家賃保証会社:賃料総額の30%(保証会社により変動):月額2% | ||
| 所在地 | 沖縄市古謝3丁目 地図 | ||
| 駐車場 | 2台5,500円 縦列 ※要サイズ確認 | 交通 | 【バス停】あわせモール前: 徒歩約7分 |
| 更新日 | 2025/12/28 | 公開期限 | 2026/01/10 |
この物件の設備・条件
| キッチン | 給湯 、 浄水器 、 IHコンロ 、 対面式キッチン 、 システムキッチン 、 オール電化 |
|---|---|
| バス・トイレ | バス/トイレ別 、 ユニットバス 、 浴槽 、 シャンプードレッサー 、 独立洗面所 、 温水洗浄便座 |
| 家具・家電 | 冷房 、 暖房 |
| セキュリティ | インターフォン 、 TVモニタ付インターホン 、 オートロック |
| 室内設備 | 室内洗濯機置き場 、 オール洋間 |
| 建物設備 | エレベーター 、 宅配ボックス |
| 放送・通信 | Wi-Fi 、 インターネット無料 |
| 収納 | ウォークインクローゼット 、 シューズボックス |
| その他条件 | ゴミ毎日OK 、 日当たり良し 、 眺望良し 、 デザイナーズ |
物件備考
| 備考 | ※掲載写真は、イメ-ジ写真となります。実際のお部屋が募集広告と異なる場合は、現況優先となります。予めご了承ください。 【完全予約制】当社は予約して頂きましたお客様の接客時間確保の為、完全予約制とさせております。 来店希望の際は、必ず前日までにお問合せを頂きご予約お願いいたします。 |
|---|
建物情報

| 物件名 | Wing chateau 古謝 メダーリア | 築年月 | 2022年08月(築3年) |
|---|---|---|---|
| 建物構造 | RC(鉄筋コンクリート造) | 建物階数 | 9階建 |
【うちなーらいふ】は、より正確な情報の提供を心がけておりますが、物件情報に誤りがある場合は、ご連絡をお願い致します。
ご報告いただいた内容につきましては、掲載提供元である不動産会社に直接送信させていただきます。情報が不足している場合や、事実確認ができない場合などは対応できない場合がございます。
間違いを報告する


































