広々とした洋室×3、和室×1、収納も多々あり♪、広々ウッドデッキからの眺望良好♪各種商業施設近し♪生活便利♪エレベーター付き(1階から3階へ直行)
物件情報
| 家賃 | 60万円 | 共益費 | ナシ |
|---|---|---|---|
| 敷金/礼金 | 60万円/ナシ | 保証金 | ナシ |
| 仲介手数料 | ナシ | ||
| その他費用 | - | 概算初期費用敷金 + 礼金 + 保証金 + 前家賃(1ヶ月分)+ 前管理賃(共益費1ヶ月分)+ 仲介手数料 + その他費用の合計です。 | - |
| 料金備考 | - | ||
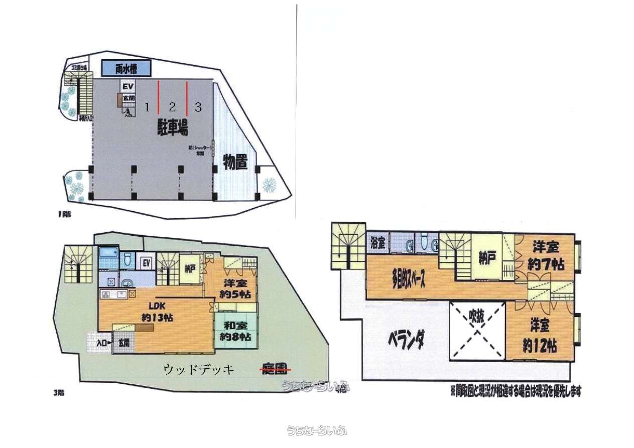
| 間取り | 4SLDK ( 洋7 洋12 洋5 和8 SLDK13 ※4階建て=1階:駐車場、3階及び4階:居住用) | ||
| 部屋番号 | - | 所在階/階数 | 3階 (4階建) |
| ペット | 不可 | 専有面積 | 218.7m² / 66.15坪 |
| 取引態様 | 貸主 | 入居 | 相談 |
| 契約期間 | 定期借家契約 (2年) | 更新料 | ナシ |
| 保証会社 | 加入要 家賃保証:マーチ株式会社、火災保険への要加入、及び継続 | ||
| 所在地 | 那覇市安里 地図 | ||
| 駐車場 | 3台無料 並列 屋内 | 交通 | 【モノレール】安里駅: 徒歩約10分 |
| 更新日 | 2026/05/14 | 公開期限 | 2026/05/27 |
・近隣の学校 ※ うちなーらいふ調査につき学校区の物件か不動産会社へご確認ください
小学校区域
大道小学校 (字安里357~420番地)泊小学校 (字安里66~69番地、72~73番地、91番地1、95~112番地、122~138番地、147~164番地、170~172番地、174番地、491~521番地)壺屋小(字安里7~10番地、13~17番地、21~25番地、29~30番地、36~65番地、70~71番地、74~86番地、89~94番地、113~121番地、165~169番地、173番地、175~190番地、196~200番地、205番地 ※91番地1は泊小学校)
中学校区域
真和志中学校(字安里7~10番地、13~17番地、21~25番地、29~30番地、36~86番地、89~138番地、155~161番地、163~190番地、196~200番地、205番地、357~420番地、491~521番地)那覇中学校(字安里147~154番地、162番地)
この物件の設備・条件
| キッチン | 給湯 、 IHコンロ |
|---|---|
| バス・トイレ | バス/トイレ別 |
| 家具・家電 | 冷房 |
| セキュリティ | インターフォン |
| 室内設備 | 室内洗濯機置き場 |
| 建物設備 | エレベーター |
| その他条件 | 眺望良し |
| 設備備考 | 広々した洋室×3、和室×1、収納も多々あり♪、広々ウッドデッキからの眺望良好♪各種商業施設近し♪生活便利♪エレベーター付き(1階から3階へ直行) |
物件備考
| 備考 | 広々とした洋室×3、和室×1、収納も多々あり♪、広々ウッドデッキからの眺望良好♪各種商業施設近し♪生活便利♪エレベーター付き(1階から3階へ直行) |
|---|
建物情報
| 物件名 | グランデ安里 | 築年月 | 2004年06月(築21年) |
|---|---|---|---|
| 建物構造 | RC(鉄筋コンクリート造) | 建物階数 | 4階建 |
【掲載物件について】
・「うちなーらいふ」は、より正確な情報の提供を心がけておりますが、物件情報に誤りがある場合は、ご連絡をお願い致します。
・ご報告いただいた内容につきましては、掲載提供元である不動産会社に直接送信させていただきます。情報が不足している場合や、事実確認ができない場合などは対応できない場合がございます。
・本フォームは物件情報の誤りに関する報告専用です。賃貸・売買に関するお問い合わせには対応しておりませんので、あらかじめご了承ください。
こちらをクリックして物件の間違いを報告する。



































