買い物、アクセス良好🌻※内覧要予約※住宅、店舗など一度ご相談下さい🌈【沖縄県中北部の不動産なら地域密着型の大和商工にお任せください】
賃貸一戸建てうるま市みどり町 うるま市みどり町2丁目
賃料25万円
物件情報
| 家賃 | 25万円 | 共益費 | - |
|---|---|---|---|
| 敷金/礼金 | 2ヶ月/ナシ | 保証金 | - |
| 仲介手数料 | ナシ | ||
| その他費用 | - | 概算初期費用敷金 + 礼金 + 保証金 + 前家賃(1ヶ月分)+ 前管理賃(共益費1ヶ月分)+ 仲介手数料 + その他費用の合計です。 | - |
| 料金備考 | - | ||
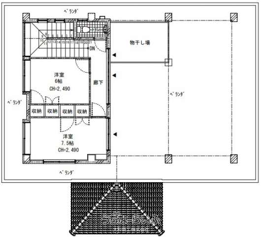
| 間取り | 5LDK ( 洋6.5 洋6 洋7.5 和6 和8 LDK16.5) | ||
| 部屋番号 | - | 所在階/階数 | - |
| ペット | 不可 | 専有面積 | - |
| 取引態様 | 貸主 | 入居 | 相談 |
| 契約期間 | 定期借家契約 (2年) | 更新料 | - |
| 保証会社 | - | ||
| 所在地 | うるま市みどり町2丁目 | ||
| 駐車場 | 3台無料 縦列 | 交通 | 【バス停】うるま市役所: 徒歩約8分 |
| 更新日 | 2026/03/24 | 公開期限 | 2026/04/06 |
この物件の設備・条件
| 建物設備 | 庭付き |
|---|---|
| その他条件 | 静かな場所 |
物件備考
| 備考 | ※内覧要予約※ ※図面と現況が相違する場合は現況を優先とします |
|---|
建物情報
| 物件名 | うるま市みどり町 | 築年月 | 1991年01月(築35年) |
|---|---|---|---|
| 建物構造 | RCB(鉄筋コンクリートブロック造) | 建物階数 | 2階建 |
【掲載物件について】
・「うちなーらいふ」は、より正確な情報の提供を心がけておりますが、物件情報に誤りがある場合は、ご連絡をお願い致します。
・ご報告いただいた内容につきましては、掲載提供元である不動産会社に直接送信させていただきます。情報が不足している場合や、事実確認ができない場合などは対応できない場合がございます。
・本フォームは物件情報の誤りに関する報告専用です。賃貸・売買に関するお問い合わせには対応しておりませんので、あらかじめご了承ください。
こちらをクリックして物件の間違いを報告する。























