2階中部屋!一人暮らし向き!渡慶次公民館・渡慶次小学校近くです!
賃貸アパートコーポ岬
賃料3.4万円
物件情報
| 家賃 | 3.4万円 | 共益費 | 1,500円 |
|---|---|---|---|
| 敷金/礼金 | 1ヶ月/ナシ | 保証金 | - |
| 仲介手数料 | 1.1ヶ月 | ||
| その他費用 | - | 概算初期費用敷金 + 礼金 + 保証金 + 前家賃(1ヶ月分)+ 前管理賃(共益費1ヶ月分)+ 仲介手数料 + その他費用の合計です。 | - |
| 料金備考 | - | ||
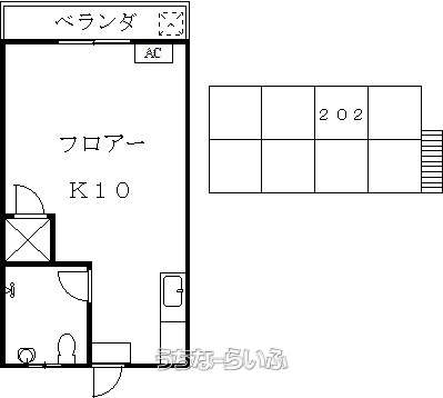
| 間取り | 1ルーム ( 洋10) | ||
| 部屋番号 | - | 所在階/階数 | 2階 (2階建) |
| ペット | 不可 | 専有面積 | 20.99m² / 6.35坪 |
| 取引態様 | 専任媒介 | 入居 | 相談 |
| 契約期間 | - | 更新料 | - |
| 保証会社 | - | ||
| 所在地 | 読谷村瀬名波 地図 | ||
| 駐車場 | 1台無料 ※軽自動車 | 交通 | - |
| 更新日 | 2025/11/26 | 公開期限 | 2025/12/09 |
・近隣の学校 ※ うちなーらいふ調査につき学校区の物件か不動産会社へご確認ください
小学校区域
瀬名波(全域)
中学校区域
瀬名波(全域)
この物件の設備・条件
| 家具・家電 | 冷房 |
|---|
物件備考
| 備考 | 2階中部屋!一人暮らし向き!渡慶次公民館・渡慶次小学校近くです! |
|---|
建物情報

| 物件名 | コーポ岬 | 築年月 | 2001年(築25年) |
|---|---|---|---|
| 建物構造 | RCB(鉄筋コンクリートブロック造) | 建物階数 | 2階建 |
【うちなーらいふ】は、より正確な情報の提供を心がけておりますが、物件情報に誤りがある場合は、ご連絡をお願い致します。
ご報告いただいた内容につきましては、掲載提供元である不動産会社に直接送信させていただきます。情報が不足している場合や、事実確認ができない場合などは対応できない場合がございます。
間違いを報告する





