フルーツランド敷地内の貸事務所!(※飲食不可)駐車場の台数確保できます♪周辺観光施設多く有り好立地!用途様々相談可能です。お気軽にお問合せください。
物件情報
| 家賃 | 20万円 | 共益費 | ナシ |
|---|---|---|---|
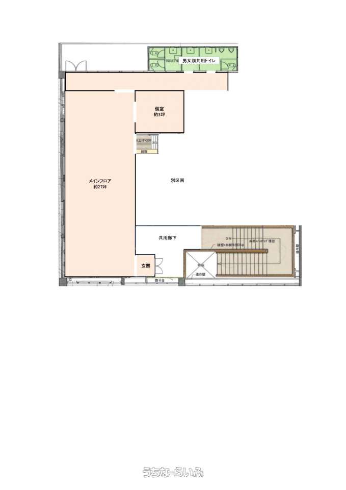
| 床面積 | 99.17m² / 30坪 | ||
| 敷金/礼金 | 2ヶ月/ナシ | 保証金 | ナシ |
| 仲介手数料 | 1ヶ月 | ||
| 料金備考 | - | ||
| 部屋番号 | 3-2号 | 所在階/階数 | 2階 |
| 物件種目 | 賃貸事務所・倉庫 | 取引態様 | 仲介 |
| 契約期間 | 定期借家契約 | 更新料 | ナシ |
| 保証会社 | 加入要 | ||
| 入居 | 相談 | ||
| 駐車場 | 10台無料 縦列 並列 | 所在地 | 名護市為又 地図 |
| 交通 | - | 築年月 | 1993年01月(築33年) |
| 間取り備考 | - | ||
| 更新日 | 2026/04/28 | 公開期限 | 2026/05/11 |
物件備考
| 備考 | - |
|---|
【掲載物件について】
・「うちなーらいふ」は、より正確な情報の提供を心がけておりますが、物件情報に誤りがある場合は、ご連絡をお願い致します。
・ご報告いただいた内容につきましては、掲載提供元である不動産会社に直接送信させていただきます。情報が不足している場合や、事実確認ができない場合などは対応できない場合がございます。
・本フォームは物件情報の誤りに関する報告専用です。賃貸・売買に関するお問い合わせには対応しておりませんので、あらかじめご了承ください。
こちらをクリックして物件の間違いを報告する。







