人気の外人住宅でました!!ネイルサロンやエステ等店舗や事務所にいかがでしょうか。駐車スペースも広々!(^^)!お庭もありとても素敵な物件です。お気軽にお問い合わせください。
物件情報
| 家賃 | 20万円 | 共益費 | ナシ |
|---|---|---|---|
| 床面積 | 119m² / 35.99坪 | ||
| 敷金/礼金 | 1ヶ月/ナシ | 保証金 | - |
| 仲介手数料 | 22万円 | ||
| 料金備考 | 初期費用概算:前払い賃料200,000円+日割り賃料、保証会社加入料:200,000円、鍵組み換え料:26,000円-、仲介手数料:220,000円-敷金:200,000円(初期費用合計約):846,000+日割り賃料 ※火災保険加入(必須)については、借主様ご自身でのご加入をお願いしております。 ※ペットを飼育されるかたは別途ペット保証金100,000円がかかります。 | ||
| 部屋番号 | - | 所在階/階数 | 1階 (1階建) |
| 物件種目 | 取引態様 | 一般媒介 | |
| 契約期間 | 定期借家契約 | 更新料 | - |
| 保証会社 | 加入要 | ||
| 入居 | 相談 (相談) | ||
| 駐車場 | 5台無料 縦列 | 所在地 | 沖縄市比屋根6丁目 地図 |
| 交通 | - | 築年月 | |
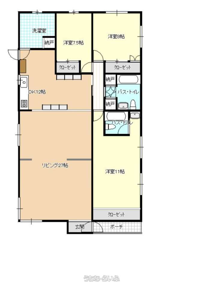
| 間取り備考 | 3LDK | ||
| 更新日 | 2026/04/02 | 公開期限 | 2026/04/15 |
この物件の設備・条件
| 内装・設備 | 冷房 (クーラー) 、 トイレ 、 給湯 |
|---|
物件備考
| 備考 | - |
|---|
【掲載物件について】
・「うちなーらいふ」は、より正確な情報の提供を心がけておりますが、物件情報に誤りがある場合は、ご連絡をお願い致します。
・ご報告いただいた内容につきましては、掲載提供元である不動産会社に直接送信させていただきます。情報が不足している場合や、事実確認ができない場合などは対応できない場合がございます。
・本フォームは物件情報の誤りに関する報告専用です。賃貸・売買に関するお問い合わせには対応しておりませんので、あらかじめご了承ください。
こちらをクリックして物件の間違いを報告する。株式会社フィーカ
| 住所 | 沖縄県沖縄市美里 6-7-3 ワンフィーカ311号室 地図 |
|---|---|
| 営業時間 | 10:00〜17:00 定休日もお電話繋がります!いつでもご連絡ください。 |
| 定休日 | 日曜日/祝日/第一水曜日 |
| 免許 | 沖縄県知事(2)第4720号 |








