★発展するてだこ浦西駅徒歩5分に完成された立地に未完成の空間誕生! ★てだこ浦西駅、高速IC(幸地IC)、浦添西原線バイパスが揃う総合交通接点を活し交通アクセス良好 ★商業施設、総合病院、クリニックモールも揃う充実の街
★業態に合わせたデザイン可能!何もないから価値が生まれる! 美容系サロン・物販等業種相談可能。スモールビジネスでこの発展するてだこから展開しませんか。
★ペット可能(小型1匹まで) ペット同伴っていいね!
物件情報
| 家賃 | 15.47万円 | 共益費 | ナシ |
|---|---|---|---|
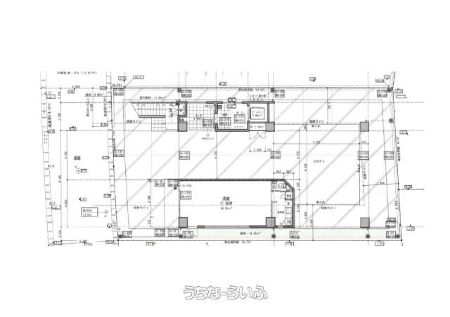
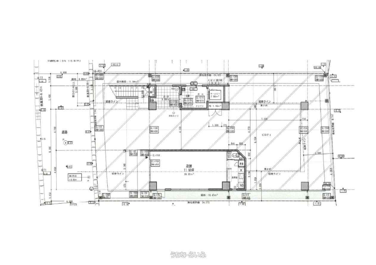
| 床面積 | 39.32m² / 11.89坪 | ||
| 敷金/礼金 | 2ヶ月/1ヶ月 | 保証金 | ナシ |
| 仲介手数料 | 1ヶ月 | ||
| 料金備考 | ・別途消費税になります。 ・敷金は業種によって変動がある場合があります。 ・ペットありの場合は、敷金1か月分が追加になります。 | ||
| 部屋番号 | 101号 | 所在階/階数 | 1階 (4階建) |
| 物件種目 | 賃貸事務所・店舗 | 取引態様 | 専属専任媒介 |
| 契約期間 | 定期借家契約 | 更新料 | 7.735万円 |
| 保証会社 | 加入要 フェアー信用保証・全保連 等 | ||
| 入居 | 指定有 (2026.10月下旬頃から11月初旬頃) | ||
| 駐車場 | 1台無料 屋内 •2台目7,000円 並列 ※駐車場台数・サイズには限りがあります。 | 所在地 | 浦添市前田3丁目 地図 |
| 交通 | 【モノレール】てだこ浦西駅: 徒歩約3分 | 築年月 | 2026年11月(新築) |
| 間取り備考 | - | ||
| 更新日 | 2026/03/19 | 公開期限 | 2026/04/01 |
この物件の設備・条件
| 外観・設備 | 前面ガラス張り |
|---|---|
| 内装・設備 | トイレ |
| 立地 | 商店街 、 路面店 |
| 設備備考 | ミニキッチン、トイレ有 |
物件備考
| 備考 | - |
|---|
【掲載物件について】
・「うちなーらいふ」は、より正確な情報の提供を心がけておりますが、物件情報に誤りがある場合は、ご連絡をお願い致します。
・ご報告いただいた内容につきましては、掲載提供元である不動産会社に直接送信させていただきます。情報が不足している場合や、事実確認ができない場合などは対応できない場合がございます。
・本フォームは物件情報の誤りに関する報告専用です。賃貸・売買に関するお問い合わせには対応しておりませんので、あらかじめご了承ください。
こちらをクリックして物件の間違いを報告する。










