☆国際通り新築店舗(2F) オシャレなデザイン(^^♪ スケルトン
R5年12/20完成予定です。新規事業大歓迎。
物件情報
| 家賃 | 51.3万円 | 共益費 | ナシ |
|---|---|---|---|
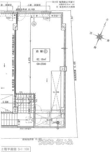
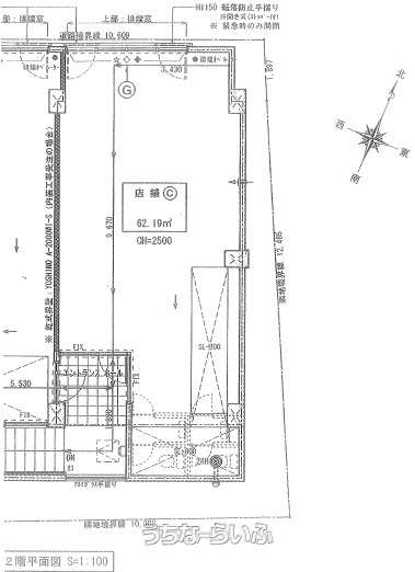
| 床面積 | 62.19m² / 18.81坪 | ||
| 敷金/礼金 | 2ヶ月/1ヶ月 | 保証金 | - |
| 仲介手数料 | 1.1ヶ月 | ||
| 料金備考 | 家賃・礼金には別途消費税が必要です。 | ||
| 部屋番号 | 2-C号 | 所在階/階数 | 2階 |
| 物件種目 | 賃貸店舗 | 取引態様 | 専属専任媒介 |
| 契約期間 | 定期借家契約 (2038/12/31 まで) | 更新料 | - |
| 保証会社 | 加入要 | ||
| 入居 | 相談 | ||
| 駐車場 | ナシ | 所在地 | 那覇市松尾2丁目 地図 |
| 交通 | - | 築年月 | - |
| 間取り備考 | - | ||
| 更新日 | 2025/12/10 | 公開期限 | 2025/12/23 |
この物件の設備・条件
| 状態 | スケルトン貸し |
|---|---|
| 設備備考 | 角部屋 |
物件備考
| 備考 | - |
|---|
【うちなーらいふ】は、より正確な情報の提供を心がけておりますが、物件情報に誤りがある場合は、ご連絡をお願い致します。
ご報告いただいた内容につきましては、掲載提供元である不動産会社に直接送信させていただきます。情報が不足している場合や、事実確認ができない場合などは対応できない場合がございます。
間違いを報告する(株)リアルシティ・コーポレーション
| 住所 | 沖縄県那覇市天久 2-28-9 Ryusビル2F 地図 |
|---|---|
| 営業時間 | 09:30〜18:30 |
| 定休日 | 日曜日・祝祭日・GW・年末年始 |
| 免許 | 沖縄県知事免許(4)第3726号 |












