【Tアパート2階 事務所】4月1日~内覧可能です♪只今予約受付中! 与儀トックリキワタ通り沿い 貸事務所(約13.1坪)
物件情報
| 家賃 | 6.5万円 | 共益費 | 2,000円 |
|---|---|---|---|
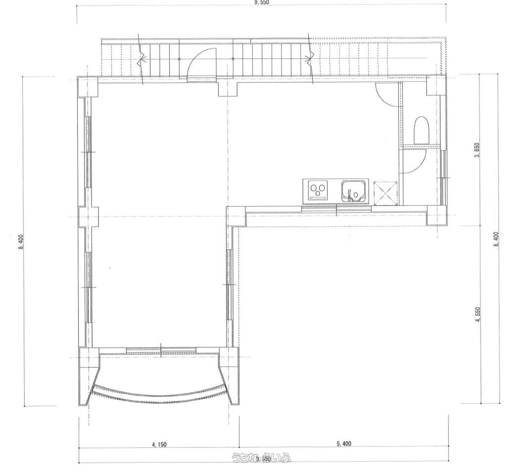
| 床面積 | 43.41m² / 13.13坪 | ||
| 敷金/礼金 | 1ヶ月/1ヶ月 | 保証金 | ナシ |
| 仲介手数料 | 1ヶ月 | ||
| 料金備考 | 【初期費用概算】家賃:65,000円/共益費:2,000円/駐車場:7,800円/敷金:1か月分/礼金:1か月分/仲介手数料:家賃+駐車料(税込)/保証料:月額賃料70~100%/別途火災保険加入要 ※月の途中からの契約の場合、日割賃料が+となります | ||
| 部屋番号 | 2F号 | 所在階/階数 | 2階 (3階建) |
| 物件種目 | 賃貸事務所 | 取引態様 | 専属専任媒介 |
| 契約期間 | 定期借家契約 (2年) | 更新料 | ナシ |
| 保証会社 | 加入要 ■(株)フェアー信用保証■全保連(株)■琉球(日本)セーフティー | ||
| 入居 | 相談 | ||
| 駐車場 | 1台7,800円 屋内 ※軽自動車のみ。駐車場所は相談となります。 | 所在地 | 那覇市与儀1丁目 地図 |
| 交通 | 【バス停】与儀小学校前: 徒歩約3分 | 築年月 | 1992年03月(築34年) |
| 間取り備考 | 1部屋となっております(仕切り無し)。ベランダ有 | ||
| 更新日 | 2026/04/20 | 公開期限 | 2026/05/03 |
この物件の設備・条件
| 内装・設備 | トイレ |
|---|---|
| 設備備考 | 流し台/シャワールーム |
物件備考
| 備考 | 【設備】トイレ/シャワールーム/流し台がございます。 ■月の途中から入居の場合、初期費用に日割賃料もプラスとなります。 ■定期借家契約(2年間)となります。期間延長又は再契約をされる場合は、事務手数料:22,000円(税込)が発生致します。 ■用途は事務所となります。(飲食不可です) ■借家人賠償責任特約付テナント総合保険等加入要 |
|---|
【掲載物件について】
・「うちなーらいふ」は、より正確な情報の提供を心がけておりますが、物件情報に誤りがある場合は、ご連絡をお願い致します。
・ご報告いただいた内容につきましては、掲載提供元である不動産会社に直接送信させていただきます。情報が不足している場合や、事実確認ができない場合などは対応できない場合がございます。
・本フォームは物件情報の誤りに関する報告専用です。賃貸・売買に関するお問い合わせには対応しておりませんので、あらかじめご了承ください。
こちらをクリックして物件の間違いを報告する。(有)スタプランニング
| 住所 | 沖縄県那覇市与儀 1-8-7 地図 |
|---|---|
| 営業時間 | 平日・土曜日は第3 09:00〜18:00 |
| 定休日 | 日曜日・祝日・第1・第2・第4・第5 土曜日 |
| 免許 | 沖縄県知事免許(5)第3662号 |










