お家賃調整致しました! 内覧予約受付中♪ オールリフォーム済み☆ 3階ワンフロアーの明るいお部屋☆ 店舗兼住宅での使用も相談可能☆ ペットも相談可能です♪
物件情報
| 家賃 | 19.8万円 | 共益費 | ナシ |
|---|---|---|---|
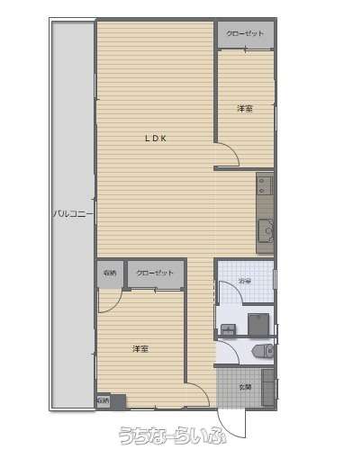
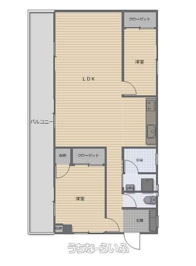
| 床面積 | 62.64m² / 18.94坪 | ||
| 敷金/礼金 | 1ヶ月/1ヶ月 | 保証金 | - |
| 仲介手数料 | 1.1ヶ月 | ||
| 料金備考 | 24時間コールサービス¥1,100 | ||
| 部屋番号 | - | 所在階/階数 | 3階 |
| 物件種目 | 賃貸事務所・店舗 | 取引態様 | 一般媒介 |
| 契約期間 | 定期借家契約 (2年) | 更新料 | 2.2万円 |
| 保証会社 | 加入要 | ||
| 入居 | 相談 | ||
| 駐車場 | 1台無料 並列 •2台目無料 並列 | 所在地 | 浦添市牧港2丁目 地図 |
| 交通 | - | 築年月 | 1977年05月(築48年) |
| 間取り備考 | - | ||
| 更新日 | 2026/01/25 | 公開期限 | 2026/02/07 |
この物件の設備・条件
| 内装・設備 | 冷房 (クーラー) 、 暖房 、 トイレ |
|---|
物件備考
| 備考 | - |
|---|
【うちなーらいふ】は、より正確な情報の提供を心がけておりますが、物件情報に誤りがある場合は、ご連絡をお願い致します。
ご報告いただいた内容につきましては、掲載提供元である不動産会社に直接送信させていただきます。情報が不足している場合や、事実確認ができない場合などは対応できない場合がございます。
間違いを報告する































